ビルNo:10024
祐徳1号館
大博通り沿い・呉服町交差点そば・地下鉄昇降口前のオフィスビル

| 建築・設備概要 | |
| 所在地 | 福岡市博多区中呉服町1-5 |
| アクセス1 | 地下鉄呉服町昇降口前 |
| アクセス2 | |
| 構造 | SRC造 地上8階建 |
| 竣工年月 | H2.11完成(1990年) |
| エレベーター | 乗 用:9人乗り 1基 |
| 空調システム | 個別空調 |
| 駐車場 | 平面駐車場 5台 |
| 駐車料金 | 一括(4~5台)110,000円(税別) |
| 付属設備 |
|
| 備考 | 大博通り沿い・呉服町交差点そば |
| 地下鉄呉服町昇降口前のオフィスビル | |
| 各階内装:事務所仕上げ | |
| 都市高速:呉服町ランプ迄車で約2分 |
| 階数 | 面積 | 賃料(総額) | 共益費(総額) | 敷金(総額) | 家賃総額 |
| (坪単価) | (坪単価) | (ヶ月) | |||
| 現在、この物件には空室はありません | |||||
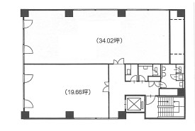
2F-8F
|
|
1F:エントランスホール
|

- 2F-8F
- 1F:エントランスホール
| ビルNo | 10024 |
|---|---|
| ビル名 | 祐徳1号館 |
| 所在地 | 福岡市博多区中呉服町1-5 【地図はこちら】 |
| アクセス | 地下鉄呉服町昇降口前 |
| 現在、この物件には空室はありません |
| 付属設備 |
|
|---|
| 駐車場 | 平面駐車場 5台 |
|---|---|
| 駐車料金 | 一括(4~5台)110,000円(税別) |
| 備考 | 大博通り沿い・呉服町交差点そば |
|---|---|
| 地下鉄呉服町昇降口前のオフィスビル | |
| 各階内装:事務所仕上げ | |
| 都市高速:呉服町ランプ迄車で約2分 |
| 構造 | SRC造 地上8階建 |
|---|---|
| 竣工年月 | H2.11完成(1990年) |
| EV | 乗 用:9人乗り 1基 |
| 空調システム | 個別空調 |
〒812-0011 福岡市博多区博多駅前3丁目25番24号 八百治ビル8階 Phone 092-431-6300

福岡の賃貸事務所・賃貸オフィスの不動産会社
【オフィスバンク株式会社】
〒812-0011
福岡県福岡市博多区博多駅前3丁目25番24号八百治ビル8階
Phone 092-431-6300
登録許可 / 福岡県知事(4)第15838号 全国宅地建物取引業保証協会会員
福岡県宅地建物取引業協会会員 福岡商工会議所会員


















