ビルNo:13172
川端123番館(仮称)
上川端町商店街通り沿い・一棟貸し3階建て・各階約34坪の事務所店舗

| 建築・設備概要 | |
| 所在地 | 福岡市博多区上川端町9-5 |
| アクセス1 | 地下鉄中洲川端駅より徒歩約5分 |
| アクセス2 | |
| 構造 | RC造 地上3階建 |
| 竣工年月 | H7.3完成(1995年) |
| エレベーター | 乗 用:6人乗り 1基 |
| 空調システム | 個別空調 |
| 駐車場 | 平面駐車場 2台 |
| 駐車料金 | 裏側2台程度駐車可(無料) |
| 付属設備 | |
| 備考 | 上川端町商店街通り沿い・一棟貸し3階建て店舗事務所 |
| 仏具店跡・事務所仕様(内階段有り)・各階約34坪 | |
| 裏側駐車場2台付き・EV1基装備 | |
| 商店街費:月/34,625円・保証会社加入必要 |
| 階数 | 面積 | 賃料(総額) | 共益費(総額) | 敷金(総額) | 家賃総額 |
| (坪単価) | (坪単価) | (ヶ月) | |||
| 現在、この物件には空室はありません | |||||
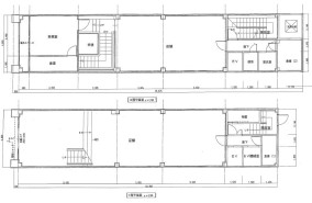
1F-2F
|
|
1F-2F:内装
|

- 1F-2F
- 1F-2F:内装
| ビルNo | 13172 |
|---|---|
| ビル名 | 川端123番館(仮称) |
| 所在地 | 福岡市博多区上川端町9-5 【地図はこちら】 |
| アクセス | 地下鉄中洲川端駅より徒歩約5分 |
| 現在、この物件には空室はありません |
| 付属設備 |
|---|
| 駐車場 | 平面駐車場 2台 |
|---|---|
| 駐車料金 | 裏側2台程度駐車可(無料) |
| 備考 | 上川端町商店街通り沿い・一棟貸し3階建て店舗事務所 |
|---|---|
| 仏具店跡・事務所仕様(内階段有り)・各階約34坪 | |
| 裏側駐車場2台付き・EV1基装備 | |
| 商店街費:月/34,625円・保証会社加入必要 |
| 構造 | RC造 地上3階建 |
|---|---|
| 竣工年月 | H7.3完成(1995年) |
| EV | 乗 用:6人乗り 1基 |
| 空調システム | 個別空調 |
〒812-0011 福岡市博多区博多駅前3丁目25番24号 八百治ビル8階 Phone 092-431-6300

福岡の賃貸事務所・賃貸オフィスの不動産会社
【オフィスバンク株式会社】
〒812-0011
福岡県福岡市博多区博多駅前3丁目25番24号八百治ビル8階
Phone 092-431-6300
登録許可 / 福岡県知事(4)第15838号 全国宅地建物取引業保証協会会員
福岡県宅地建物取引業協会会員 福岡商工会議所会員


















