ビルNo:17146
博多駅前C-9ビル
バス大通り沿い・ANAクラウンホテル前のオフィスビル

| 建築・設備概要 | |
| 所在地 | 福岡市博多区博多駅前4-2-20 |
| アクセス1 | JR博多駅より徒歩約5分 |
| アクセス2 | |
| 構造 | SRC造 地上8階建 |
| 竣工年月 | H28.12完成(2016年) |
| エレベーター | 乗 用:11人乗り 2基 |
| 空調システム | 個別空調 |
| 駐車場 | 立体駐車場 32台 |
| 駐車料金 | 駐車場1台:30,000円(税別) 敷金:2ケ月 |
| 付属設備 |
|
| 備考 | ANAクラウンホテル前・平成28年12月完成 |
| オフィスビル・各階内装:事務所仕上げ・OAフロア | |
| 天井高:2,650㎜・身障者用トイレ装備(1F) | |
| 階数 | 面積 | 賃料(総額) | 共益費(総額) | 敷金(総額) | 家賃総額 |
| (坪単価) | (坪単価) | (ヶ月) | |||
| 現在、この物件には空室はありません | |||||
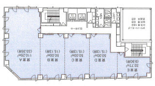
3F-8F
|
|
1F:エントランス
|

- 3F-8F
- 1F:エントランス
| ビルNo | 17146 |
|---|---|
| ビル名 | 博多駅前C-9ビル |
| 所在地 | 福岡市博多区博多駅前4-2-20 【地図はこちら】 |
| アクセス | JR博多駅より徒歩約5分 |
| 現在、この物件には空室はありません |
| 付属設備 |
|
|---|
| 駐車場 | 立体駐車場 32台 |
|---|---|
| 駐車料金 | 駐車場1台:30,000円(税別) 敷金:2ケ月 |
| 備考 | ANAクラウンホテル前・平成28年12月完成 |
|---|---|
| オフィスビル・各階内装:事務所仕上げ・OAフロア | |
| 天井高:2,650㎜・身障者用トイレ装備(1F) |
| 構造 | SRC造 地上8階建 |
|---|---|
| 竣工年月 | H28.12完成(2016年) |
| EV | 乗 用:11人乗り 2基 |
| 空調システム | 個別空調 |
〒812-0011 福岡市博多区博多駅前3丁目25番24号 八百治ビル8階 Phone 092-431-6300

福岡の賃貸事務所・賃貸オフィスの不動産会社
【オフィスバンク株式会社】
〒812-0011
福岡県福岡市博多区博多駅前3丁目25番24号八百治ビル8階
Phone 092-431-6300
登録許可 / 福岡県知事(4)第15838号 全国宅地建物取引業保証協会会員
福岡県宅地建物取引業協会会員 福岡商工会議所会員


















