ビルNo:19035
南福岡プラザビル
南福岡駅前通り沿い・サービス系企業に人気のビル

| 建築・設備概要 | |
| 所在地 | 福岡市博多区寿町2-4-11 |
| アクセス1 | JR南福岡駅徒歩約2分 |
| アクセス2 | 西鉄バス:寿町二丁目停より徒歩約1分 |
| 構造 | RC造 地上5階建 |
| 竣工年月 | S61.10完成(1986年) |
| エレベーター | 乗 用:9人乗り 1基 |
| 空調システム | 個別空調 |
| 駐車場 | --- 無し --- |
| 駐車料金 | ---------- |
| 付属設備 | |
| 備考 | 南福岡駅前通り沿い・南福岡駅そばのオフィスビル |
| サービス系の企業に人気のビル | |
| 各階内装:事務所仕上げ | |
| 保証会社加入必要・テナント総合保険加入必要 |
| 階数 | 面積 | 賃料(総額) | 共益費(総額) | 敷金(総額) | 家賃総額 |
| (坪単価) | (坪単価) | (ヶ月) | |||
| 現在、この物件には空室はありません | |||||
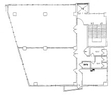
2F-5F
|
|
|
|

- 2F-5F
| ビルNo | 19035 |
|---|---|
| ビル名 | 南福岡プラザビル |
| 所在地 | 福岡市博多区寿町2-4-11 【地図はこちら】 |
| アクセス | JR南福岡駅徒歩約2分 |
| アクセス2 | 西鉄バス:寿町二丁目停より徒歩約1分 |
| 現在、この物件には空室はありません |
| 付属設備 |
|---|
| 駐車場 | --- 無し --- |
|---|---|
| 駐車料金 | ---------- |
| 備考 | 南福岡駅前通り沿い・南福岡駅そばのオフィスビル |
|---|---|
| サービス系の企業に人気のビル | |
| 各階内装:事務所仕上げ | |
| 保証会社加入必要・テナント総合保険加入必要 |
| 構造 | RC造 地上5階建 |
|---|---|
| 竣工年月 | S61.10完成(1986年) |
| EV | 乗 用:9人乗り 1基 |
| 空調システム | 個別空調 |
〒812-0011 福岡市博多区博多駅前3丁目25番24号 八百治ビル8階 Phone 092-431-6300

福岡の賃貸事務所・賃貸オフィスの不動産会社
【オフィスバンク株式会社】
〒812-0011
福岡県福岡市博多区博多駅前3丁目25番24号八百治ビル8階
Phone 092-431-6300
登録許可 / 福岡県知事(4)第15838号 全国宅地建物取引業保証協会会員
福岡県宅地建物取引業協会会員 福岡商工会議所会員


















