ビルNo:25065
アスティオン天神ビル
アークロイヤルホテルそばのオフィスビル・平成20年:フルリニューアル

| 建築・設備概要 | |
| 所在地 | 福岡市中央区天神3-8-11 |
| アクセス1 | 地下鉄天神昇降口:徒歩約8分 |
| アクセス2 | 西鉄バス:那の津口:徒歩約4分 |
| 構造 | RC造 地上5階建 |
| 竣工年月 | S59.11完成(1984年) |
| エレベーター | 乗 用:6人乗り 1基 |
| 空調システム | 個別空調 |
| 駐車場 | --- 無し --- |
| 駐車料金 | ---------- |
| 付属設備 |
|
| 備考 | アークロイヤルホテルそば |
| 1フロア:1社タイプのオフィスビル | |
| 各階内装:事務所仕上げ・OAフロア・天井高2.8m | |
| 保証会社加入必要・テナント総合保険加入必要 |
| 階数 | 面積 | 賃料(総額) | 共益費(総額) | 敷金(総額) | 家賃総額 |
| (坪単価) | (坪単価) | (ヶ月) | |||
| 現在、この物件には空室はありません | |||||
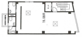
3F-5F
|
|
1F:玄関入口
|

- 3F-5F
- 1F:玄関入口
| ビルNo | 25065 |
|---|---|
| ビル名 | アスティオン天神ビル |
| 所在地 | 福岡市中央区天神3-8-11 【地図はこちら】 |
| アクセス | 地下鉄天神昇降口:徒歩約8分 |
| アクセス2 | 西鉄バス:那の津口:徒歩約4分 |
| 現在、この物件には空室はありません |
| 付属設備 |
|
|---|
| 駐車場 | --- 無し --- |
|---|---|
| 駐車料金 | ---------- |
| 備考 | アークロイヤルホテルそば |
|---|---|
| 1フロア:1社タイプのオフィスビル | |
| 各階内装:事務所仕上げ・OAフロア・天井高2.8m | |
| 保証会社加入必要・テナント総合保険加入必要 |
| 構造 | RC造 地上5階建 |
|---|---|
| 竣工年月 | S59.11完成(1984年) |
| EV | 乗 用:6人乗り 1基 |
| 空調システム | 個別空調 |
〒812-0011 福岡市博多区博多駅前3丁目25番24号 八百治ビル8階 Phone 092-431-6300

福岡の賃貸事務所・賃貸オフィスの不動産会社
【オフィスバンク株式会社】
〒812-0011
福岡県福岡市博多区博多駅前3丁目25番24号八百治ビル8階
Phone 092-431-6300
登録許可 / 福岡県知事(4)第15838号 全国宅地建物取引業保証協会会員
福岡県宅地建物取引業協会会員 福岡商工会議所会員


















