ビルNo:26047
コンプレート天神ビル
那の津通り沿い・福岡市民ホール・須崎公園そば・1フロア:1社タイプのオフィスビル

| 建築・設備概要 | |
| 所在地 | 福岡市中央区天神5-3-11 |
| アクセス1 | 地下鉄天神昇降口:徒歩約8分 |
| アクセス2 | 西鉄バス:市民ホール前より徒歩約3分 |
| 構造 | RC造 地上5階建 |
| 竣工年月 | H2.8完成(1990年) |
| エレベーター | 乗 用:6人乗り 1基 |
| 空調システム | 個別空調(残置物) |
| 駐車場 | 立体駐車場 34台 |
| 駐車料金 | 駐車場1台:20,000円(税別) 敷金:1ケ月 |
| 付属設備 |
|
| 備考 | 那の津通り沿い・福岡市民ホール・須崎公園そば |
| 1フロア:1社タイプのオフィスビル | |
| 各階内装:事務所仕上げ | |
| 定期借家契約5年(再契約相談可)・保証会社加入必要 |
| 階数 | 面積 | 賃料(総額) | 共益費(総額) | 敷金(総額) | 家賃総額 |
| (坪単価) | (坪単価) | (ヶ月) | |||
| 4 | 25.60坪(84.63㎡) | 217,600円 | 0円 | 1,305,600円 |
217,600円
[税込:239,360円] |
| @8,500円 | @0円 | 6ヶ月 |
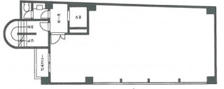
2F-5F
|
|
貸室イメージ
|

- 2F-5F
- 貸室イメージ
| ビルNo | 26047 |
|---|---|
| ビル名 | コンプレート天神ビル |
| 所在地 | 福岡市中央区天神5-3-11 【地図はこちら】 |
| アクセス | 地下鉄天神昇降口:徒歩約8分 |
| アクセス2 | 西鉄バス:市民ホール前より徒歩約3分 |
| 階数面積 | 4階 25.60坪(84.63㎡) | |
|---|---|---|
| 賃料 | 総額 | 217,600円 (坪単価 @8,500円) |
| 共益費 | 総額 | 0円 (坪単価 @0円) |
| 敷金 | 総額 | 1,305,600円 (6ヶ月) |
| 家賃総額 | 217,600円 (税込:239,360円) | |
| 付属設備 |
|
|---|
| 駐車場 | 立体駐車場 34台 |
|---|---|
| 駐車料金 | 駐車場1台:20,000円(税別) 敷金:1ケ月 |
| 備考 | 那の津通り沿い・福岡市民ホール・須崎公園そば |
|---|---|
| 1フロア:1社タイプのオフィスビル | |
| 各階内装:事務所仕上げ | |
| 定期借家契約5年(再契約相談可)・保証会社加入必要 |
| 構造 | RC造 地上5階建 |
|---|---|
| 竣工年月 | H2.8完成(1990年) |
| EV | 乗 用:6人乗り 1基 |
| 空調システム | 個別空調(残置物) |
〒812-0011 福岡市博多区博多駅前3丁目25番24号 八百治ビル8階 Phone 092-431-6300

福岡の賃貸事務所・賃貸オフィスの不動産会社
【オフィスバンク株式会社】
〒812-0011
福岡県福岡市博多区博多駅前3丁目25番24号八百治ビル8階
Phone 092-431-6300
登録許可 / 福岡県知事(4)第15838号 全国宅地建物取引業保証協会会員
福岡県宅地建物取引業協会会員 福岡商工会議所会員


















