ビルNo:26092
日之出ビル
明治通り沿い・アクロス福岡斜め前角地のオフィスビル

| 建築・設備概要 | |
| 所在地 | 福岡市中央区天神1-15-1 |
| アクセス1 | 地下鉄天神昇降口:徒歩約1分 |
| アクセス2 | 西鉄バス:アクロス福岡停前 |
| 構造 | SRC造 地下1階 地上8階建 |
| 竣工年月 | S62.5完成(1987年) |
| エレベーター | 乗 用:9人乗り 1基 |
| 空調システム | 個別空調 |
| 駐車場 | --- 無し --- |
| 駐車料金 | ---------- |
| 付属設備 |
|
| 備考 | 明治通り沿い・アクロス福岡斜め前角地 |
| 1フロア:1社タイプのオフィスビル | |
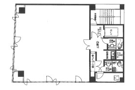
| 各階内装:事務所仕上げ・天井高:H2,600mm | |
| 定期借家契約(年数要相談) |
| 階数 | 面積 | 賃料(総額) | 共益費(総額) | 敷金(総額) | 家賃総額 |
| (坪単価) | (坪単価) | (ヶ月) | |||
| 7 | 30.10坪(99.5㎡) | 361,200円 | 105,350円 | 3,612,000円 |
466,550円
[税込:513,205円] |
| @12,000円 | @3,500円 | 10ヶ月 |
2F-7F
|
|
1F:玄関入口
|

- 2F-7F
- 1F:玄関入口
| ビルNo | 26092 |
|---|---|
| ビル名 | 日之出ビル |
| 所在地 | 福岡市中央区天神1-15-1 【地図はこちら】 |
| アクセス | 地下鉄天神昇降口:徒歩約1分 |
| アクセス2 | 西鉄バス:アクロス福岡停前 |
| 階数面積 | 7階 30.10坪(99.5㎡) | |
|---|---|---|
| 賃料 | 総額 | 361,200円 (坪単価 @12,000円) |
| 共益費 | 総額 | 105,350円 (坪単価 @3,500円) |
| 敷金 | 総額 | 3,612,000円 (10ヶ月) |
| 家賃総額 | 466,550円 (税込:513,205円) | |
| 付属設備 |
|
|---|
| 駐車場 | --- 無し --- |
|---|---|
| 駐車料金 | ---------- |
| 備考 | 明治通り沿い・アクロス福岡斜め前角地 |
|---|---|
| 1フロア:1社タイプのオフィスビル | |
| 各階内装:事務所仕上げ・天井高:H2,600mm | |
| 定期借家契約(年数要相談) |
| 構造 | SRC造 地下1階 地上8階建 |
|---|---|
| 竣工年月 | S62.5完成(1987年) |
| EV | 乗 用:9人乗り 1基 |
| 空調システム | 個別空調 |
〒812-0011 福岡市博多区博多駅前3丁目25番24号 八百治ビル8階 Phone 092-431-6300

福岡の賃貸事務所・賃貸オフィスの不動産会社
【オフィスバンク株式会社】
〒812-0011
福岡県福岡市博多区博多駅前3丁目25番24号八百治ビル8階
Phone 092-431-6300
登録許可 / 福岡県知事(4)第15838号 全国宅地建物取引業保証協会会員
福岡県宅地建物取引業協会会員 福岡商工会議所会員


















