ビルNo:60175
幸彦ビル
きよみ通り沿い・住吉中前交差点そばの複合ビル

| 建築・設備概要 | |
| 所在地 | 福岡市南区清水3-8-29 |
| アクセス1 | 西鉄バス:清水三丁目バス停前 |
| アクセス2 | 西鉄大牟田線:高宮駅迄徒歩約13分 |
| 構造 | RC造 地上9階建 |
| 竣工年月 | S52.10完成(1977年) |
| エレベーター | 乗 用:9人乗り 1基 |
| 空調システム | 個別空調(残置物) |
| 駐車場 | 平面駐車場 4台 |
| 駐車料金 | 前面駐車場4台付 家賃に含む |
| 付属設備 | |
| 備考 | きよみ通り沿い・住吉中前交差点そばの複合ビル |
| 1階内装:事務所仕上げ・前面駐車場4台付 | |
| 保証会社加入必要 | |
| 西鉄バス:清水三丁目バス停前 |
| 階数 | 面積 | 賃料(総額) | 共益費(総額) | 敷金(総額) | 家賃総額 |
| (坪単価) | (坪単価) | (ヶ月) | |||
| 現在、この物件には空室はありません | |||||
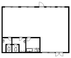
1F:34坪
|
|
1F:34坪
|

- 1F:34坪
- 1F:34坪
| ビルNo | 60175 |
|---|---|
| ビル名 | 幸彦ビル |
| 所在地 | 福岡市南区清水3-8-29 【地図はこちら】 |
| アクセス | 西鉄バス:清水三丁目バス停前 |
| アクセス2 | 西鉄大牟田線:高宮駅迄徒歩約13分 |
| 現在、この物件には空室はありません |
| 付属設備 |
|---|
| 駐車場 | 平面駐車場 4台 |
|---|---|
| 駐車料金 | 前面駐車場4台付 家賃に含む |
| 備考 | きよみ通り沿い・住吉中前交差点そばの複合ビル |
|---|---|
| 1階内装:事務所仕上げ・前面駐車場4台付 | |
| 保証会社加入必要 | |
| 西鉄バス:清水三丁目バス停前 |
| 構造 | RC造 地上9階建 |
|---|---|
| 竣工年月 | S52.10完成(1977年) |
| EV | 乗 用:9人乗り 1基 |
| 空調システム | 個別空調(残置物) |
〒812-0011 福岡市博多区博多駅前3丁目25番24号 八百治ビル8階 Phone 092-431-6300

福岡の賃貸事務所・賃貸オフィスの不動産会社
【オフィスバンク株式会社】
〒812-0011
福岡県福岡市博多区博多駅前3丁目25番24号八百治ビル8階
Phone 092-431-6300
登録許可 / 福岡県知事(4)第15838号 全国宅地建物取引業保証協会会員
福岡県宅地建物取引業協会会員 福岡商工会議所会員


















