ビルNo:86065
SDK熊本ビル
熊本電鉄:藤崎宮前駅そば・令和1年8月完成の大型オフィスビル

| 建築・設備概要 | |
| 所在地 | 熊本市中央区坪井2-1-42 |
| アクセス1 | 熊本電鉄:藤崎宮前駅より徒歩約1分 |
| アクセス2 | 熊本市電:通町筋より徒歩約10分 |
| 構造 | RC造 地上6階建 |
| 竣工年月 | R1.8完成(2019年) |
| エレベーター | 乗 用:17人乗り 2基 荷搬用:1基 |
| 空調システム | 個別空調 |
| 駐車場 | 自走式駐車場 60台 |
| 駐車料金 | 確認中・時間貸し有 |
| 付属設備 |
|
| 備考 | 熊本電鉄:藤崎宮前駅そば |
| 令和1年8月完成の大型オフィスビル | |
| 荷搬用大型EV:1基装備・天井高:2.8m | |
| 床荷重㎡/500kg |
| 階数 | 面積 | 賃料(総額) | 共益費(総額) | 敷金(総額) | 家賃総額 |
| (坪単価) | (坪単価) | (ヶ月) | |||
| 現在、この物件には空室はありません | |||||
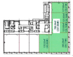
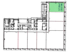
4F
|
|
5F
|

- 4F
- 5F
| ビルNo | 86065 |
|---|---|
| ビル名 | SDK熊本ビル |
| 所在地 | 熊本市中央区坪井2-1-42 【地図はこちら】 |
| アクセス | 熊本電鉄:藤崎宮前駅より徒歩約1分 |
| アクセス2 | 熊本市電:通町筋より徒歩約10分 |
| 現在、この物件には空室はありません |
| 付属設備 |
|
|---|
| 駐車場 | 自走式駐車場 60台 |
|---|---|
| 駐車料金 | 確認中・時間貸し有 |
| 備考 | 熊本電鉄:藤崎宮前駅そば |
|---|---|
| 令和1年8月完成の大型オフィスビル | |
| 荷搬用大型EV:1基装備・天井高:2.8m | |
| 床荷重㎡/500kg |
| 構造 | RC造 地上6階建 |
|---|---|
| 竣工年月 | R1.8完成(2019年) |
| EV | 乗 用:17人乗り 2基 荷搬用:1基 |
| 空調システム | 個別空調 |
〒812-0011 福岡市博多区博多駅前3丁目25番24号 八百治ビル8階 Phone 092-431-6300

福岡の賃貸事務所・賃貸オフィスの不動産会社
【オフィスバンク株式会社】
〒812-0011
福岡県福岡市博多区博多駅前3丁目25番24号八百治ビル8階
Phone 092-431-6300
登録許可 / 福岡県知事(4)第15838号 全国宅地建物取引業保証協会会員
福岡県宅地建物取引業協会会員 福岡商工会議所会員


















