ビルNo:13016
博多大博通ビル
大博通り沿い・地下鉄昇降口前の大型オフィスビル

| 建築・設備概要 | |
| 所在地 | 福岡市博多区博多駅前1-5-1 |
| アクセス1 | JR博多駅より徒歩約5分 |
| アクセス2 | 地下鉄昇降口迄:20m |
| 構造 | SRC造 地下2階地上12階建 |
| 竣工年月 | S50.2完成(1975年) |
| エレベーター | 乗 用:15人乗り 4基 荷搬用:1基 |
| 空調システム | 全館集中型+個別空調 |
| 駐車場 | 立体駐車場 30台 地下駐車場 25台 |
| 駐車料金 | 駐車場1台:30,000円(税別) 敷金:3ケ月 |
| 付属設備 |
|
| 備考 | 大博通り沿い・地下鉄昇降口前の大型オフィスビル |
| 各階内装:事務所仕上げ・OAフロア | |
| ビル指定時間内の空調費は共益費に含む | |
| 大型荷搬用EV:1基装備・地下1階:貸し倉庫有 |
| 階数 | 面積 | 賃料(総額) | 共益費(総額) | 敷金(総額) | 家賃総額 |
| (坪単価) | (坪単価) | (ヶ月) | |||
| 7 | 19.19坪(63.44㎡) | 345,420円 | 0円 | 4,145,040円 |
345,420円
[税込:379,962円] |
| @18,000円 | @0円 | 12ヶ月 |
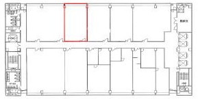
7F:19坪
|
|
1F:エントランスホール
|

- 7F:19坪
- 1F:エントランスホール
| ビルNo | 13016 |
|---|---|
| ビル名 | 博多大博通ビル |
| 所在地 | 福岡市博多区博多駅前1-5-1 【地図はこちら】 |
| アクセス | JR博多駅より徒歩約5分 |
| アクセス2 | 地下鉄昇降口迄:20m |
| 階数面積 | 7階 19.19坪(63.44㎡) | |
|---|---|---|
| 賃料 | 総額 | 345,420円 (坪単価 @18,000円) |
| 共益費 | 総額 | 0円 (坪単価 @0円) |
| 敷金 | 総額 | 4,145,040円 (12ヶ月) |
| 家賃総額 | 345,420円 (税込:379,962円) | |
| 付属設備 |
|
|---|
| 駐車場 | 立体駐車場 30台 地下駐車場 25台 |
|---|---|
| 駐車料金 | 駐車場1台:30,000円(税別) 敷金:3ケ月 |
| 備考 | 大博通り沿い・地下鉄昇降口前の大型オフィスビル |
|---|---|
| 各階内装:事務所仕上げ・OAフロア | |
| ビル指定時間内の空調費は共益費に含む | |
| 大型荷搬用EV:1基装備・地下1階:貸し倉庫有 |
| 構造 | SRC造 地下2階地上12階建 |
|---|---|
| 竣工年月 | S50.2完成(1975年) |
| EV | 乗 用:15人乗り 4基 荷搬用:1基 |
| 空調システム | 全館集中型+個別空調 |
〒812-0011 福岡市博多区博多駅前3丁目25番24号 八百治ビル8階 Phone 092-431-6300

福岡の賃貸事務所・賃貸オフィスの不動産会社
【オフィスバンク株式会社】
〒812-0011
福岡県福岡市博多区博多駅前3丁目25番24号八百治ビル8階
Phone 092-431-6300
登録許可 / 福岡県知事(4)第15838号 全国宅地建物取引業保証協会会員
福岡県宅地建物取引業協会会員 福岡商工会議所会員


















