ビルNo:23001
福岡興銀ビル
明治通り沿い・アクロス福岡斜め前・耐震補強工事完了の大型オフィスビル

| 建築・設備概要 | |
| 所在地 | 福岡市中央区天神1-13-2 |
| アクセス1 | 地下鉄天神昇降口:徒歩約2分 |
| アクセス2 | 西鉄バス:天神日銀前停より徒歩約2分 |
| 構造 | SRC造 地下2階地上9階建 |
| 竣工年月 | S45.2完成(1970年) |
| エレベーター | 乗 用:15人乗り 2基 |
| 空調システム | 個別空調・ビル空調指定時間・空調代共益費に含む |
| 駐車場 | 地下駐車場 25台 |
| 駐車料金 | 駐車場1台:45,000円(税別) 敷金:10万円 |
| 付属設備 |
|
| 備考 | 明治通り沿い・アクロス福岡斜め前 |
| 各階内装:事務所仕上げ・OAフロア | |
| ビル空調指定時間・空調代共益費に含む | |
| 地下貸倉庫有・定借3年(再契約可) |
| 階数 | 面積 | 賃料(総額) | 共益費(総額) | 敷金(総額) | 家賃総額 |
| (坪単価) | (坪単価) | (ヶ月) | |||
| 5 | 190.78坪(630.68㎡) | 3,624,820円 | 0円 | 43,497,840円 |
3,624,820円
[税込:3,987,302円] |
| @19,000円 | @0円 | 12ヶ月 |
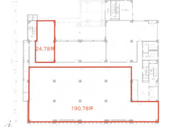
5F
|
|
5F:190.78坪
|

- 5F
- 5F:190.78坪
| ビルNo | 23001 |
|---|---|
| ビル名 | 福岡興銀ビル |
| 所在地 | 福岡市中央区天神1-13-2 【地図はこちら】 |
| アクセス | 地下鉄天神昇降口:徒歩約2分 |
| アクセス2 | 西鉄バス:天神日銀前停より徒歩約2分 |
| 階数面積 | 5階 190.78坪(630.68㎡) | |
|---|---|---|
| 賃料 | 総額 | 3,624,820円 (坪単価 @19,000円) |
| 共益費 | 総額 | 0円 (坪単価 @0円) |
| 敷金 | 総額 | 43,497,840円 (12ヶ月) |
| 家賃総額 | 3,624,820円 (税込:3,987,302円) | |
| 付属設備 |
|
|---|
| 駐車場 | 地下駐車場 25台 |
|---|---|
| 駐車料金 | 駐車場1台:45,000円(税別) 敷金:10万円 |
| 備考 | 明治通り沿い・アクロス福岡斜め前 |
|---|---|
| 各階内装:事務所仕上げ・OAフロア | |
| ビル空調指定時間・空調代共益費に含む | |
| 地下貸倉庫有・定借3年(再契約可) |
| 構造 | SRC造 地下2階地上9階建 |
|---|---|
| 竣工年月 | S45.2完成(1970年) |
| EV | 乗 用:15人乗り 2基 |
| 空調システム | 個別空調・ビル空調指定時間・空調代共益費に含む |
〒812-0011 福岡市博多区博多駅前3丁目25番24号 八百治ビル8階 Phone 092-431-6300

福岡の賃貸事務所・賃貸オフィスの不動産会社
【オフィスバンク株式会社】
〒812-0011
福岡県福岡市博多区博多駅前3丁目25番24号八百治ビル8階
Phone 092-431-6300
登録許可 / 福岡県知事(4)第15838号 全国宅地建物取引業保証協会会員
福岡県宅地建物取引業協会会員 福岡商工会議所会員


















