ビルNo:17140
S-GATE博多駅東
筑紫通り沿い・瑞穂交差点そば・大型オフィスビル・令和8年2月完成

| 建築・設備概要 | |
| 所在地 | 福岡市博多区博多駅東3-1-21 |
| アクセス1 | JR博多駅より徒歩約9分 |
| アクセス2 | 西鉄バス:駅東3丁目停前 |
| 構造 | S造 地上8階建 |
| 竣工年月 | R8.1完成(2026年) |
| エレベーター | 乗 用:11人乗り 3基 |
| 空調システム | 個別空調 |
| 駐車場 | 立体駐車場 12台 平面駐車場 1台 |
| 駐車料金 | 1台:30,000円(税別)敷金:3ケ月 |
| 付属設備 |
|
| 備考 | 筑紫通り沿い・瑞穂交差点そば |
| 大型オフィスビル・令和8年1月完成 | |
| 各階内装:事務所仕上げ・OAフロア・天井高2.7m | |
| 多目的トイレ装備・床荷重㎡/500㎏・定期借家契約 |
| 階数 | 面積 | 賃料(総額) | 共益費(総額) | 敷金(総額) | 家賃総額 |
| (坪単価) | (坪単価) | (ヶ月) | |||
| 2 | 49.66坪(164.17㎡) | 1,142,180円 | 0円 | 13,706,160円 |
1,142,180円
[税込:1,256,398円] |
| @23,000円 | @0円 | 12ヶ月 |
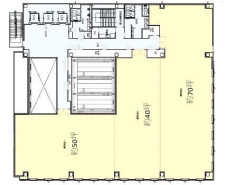
2F
|
|
貸室イメージ
|

- 2F
- 貸室イメージ
| ビルNo | 17140 |
|---|---|
| ビル名 | S-GATE博多駅東 |
| 所在地 | 福岡市博多区博多駅東3-1-21 【地図はこちら】 |
| アクセス | JR博多駅より徒歩約9分 |
| アクセス2 | 西鉄バス:駅東3丁目停前 |
| 階数面積 | 2階 49.66坪(164.17㎡) | |
|---|---|---|
| 賃料 | 総額 | 1,142,180円 (坪単価 @23,000円) |
| 共益費 | 総額 | 0円 (坪単価 @0円) |
| 敷金 | 総額 | 13,706,160円 (12ヶ月) |
| 家賃総額 | 1,142,180円 (税込:1,256,398円) | |
| 付属設備 |
|
|---|
| 駐車場 | 立体駐車場 12台 平面駐車場 1台 |
|---|---|
| 駐車料金 | 1台:30,000円(税別)敷金:3ケ月 |
| 備考 | 筑紫通り沿い・瑞穂交差点そば |
|---|---|
| 大型オフィスビル・令和8年1月完成 | |
| 各階内装:事務所仕上げ・OAフロア・天井高2.7m | |
| 多目的トイレ装備・床荷重㎡/500㎏・定期借家契約 |
| 構造 | S造 地上8階建 |
|---|---|
| 竣工年月 | R8.1完成(2026年) |
| EV | 乗 用:11人乗り 3基 |
| 空調システム | 個別空調 |
〒812-0011 福岡市博多区博多駅前3丁目25番24号 八百治ビル8階 Phone 092-431-6300

福岡の賃貸事務所・賃貸オフィスの不動産会社
【オフィスバンク株式会社】
〒812-0011
福岡県福岡市博多区博多駅前3丁目25番24号八百治ビル8階
Phone 092-431-6300
登録許可 / 福岡県知事(4)第15838号 全国宅地建物取引業保証協会会員
福岡県宅地建物取引業協会会員 福岡商工会議所会員


















