ビルNo:11092
北九州銀行呉服町ビル
大博通り沿い・重厚な総大理石張りの大型オフィスビル

| 建築・設備概要 | |
| 所在地 | 福岡市博多区上呉服町1-8 |
| アクセス1 | 地下鉄呉服町駅:徒歩約3分 |
| アクセス2 | |
| 構造 | SRC造 地下1階 地上10階建 |
| 竣工年月 | H1.1完成(1989年) |
| エレベーター | 乗 用:13人乗り 2基 |
| 空調システム | 個別空調 |
| 駐車場 | 地下駐車場 17台 |
| 駐車料金 | 駐車場1台:20,000円(税別) |
| 付属設備 |
|
| 備考 | 大博通り沿い・呉服町交差点近し |
| 1階:北九州銀行入居の大型オフィスビル | |
| 各階内装:事務所仕上げ・OAフロア・天井高2.5m | |
| 階数 | 面積 | 賃料(総額) | 共益費(総額) | 敷金(総額) | 家賃総額 |
| (坪単価) | (坪単価) | (ヶ月) | |||
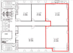
| 5 | 27.23坪(90.02㎡) | 353,990円 | 81,690円 | 4,247,880円 |
435,680円
[税込:479,248円] |
| @13,000円 | @3,000円 | 12ヶ月 |
5F
|
|
1F:エントランスホール
|

- 5F
- 1F:エントランスホール
| ビルNo | 11092 |
|---|---|
| ビル名 | 北九州銀行呉服町ビル |
| 所在地 | 福岡市博多区上呉服町1-8 【地図はこちら】 |
| アクセス | 地下鉄呉服町駅:徒歩約3分 |
| 階数面積 | 5階 27.23坪(90.02㎡) | |
|---|---|---|
| 賃料 | 総額 | 353,990円 (坪単価 @13,000円) |
| 共益費 | 総額 | 81,690円 (坪単価 @3,000円) |
| 敷金 | 総額 | 4,247,880円 (12ヶ月) |
| 家賃総額 | 435,680円 (税込:479,248円) | |
| 付属設備 |
|
|---|
| 駐車場 | 地下駐車場 17台 |
|---|---|
| 駐車料金 | 駐車場1台:20,000円(税別) |
| 備考 | 大博通り沿い・呉服町交差点近し |
|---|---|
| 1階:北九州銀行入居の大型オフィスビル | |
| 各階内装:事務所仕上げ・OAフロア・天井高2.5m |
| 構造 | SRC造 地下1階 地上10階建 |
|---|---|
| 竣工年月 | H1.1完成(1989年) |
| EV | 乗 用:13人乗り 2基 |
| 空調システム | 個別空調 |
〒812-0011 福岡市博多区博多駅前3丁目25番24号 八百治ビル8階 Phone 092-431-6300

福岡の賃貸事務所・賃貸オフィスの不動産会社
【オフィスバンク株式会社】
〒812-0011
福岡県福岡市博多区博多駅前3丁目25番24号八百治ビル8階
Phone 092-431-6300
登録許可 / 福岡県知事(4)第15838号 全国宅地建物取引業保証協会会員
福岡県宅地建物取引業協会会員 福岡商工会議所会員


















