ビルNo:21006
岩田屋三越今泉ビル
今泉公園・ホテル天神プレイスそばのオフィスビル

| 建築・設備概要 | |
| 所在地 | 福岡市中央区今泉1-6-1 |
| アクセス1 | 地下鉄天神南駅より徒歩約5分 |
| アクセス2 | 西鉄薬院駅より徒歩約5分 |
| 構造 | SRC・RC造 地上8階建 |
| 竣工年月 | S63.12完成(1988年) |
| エレベーター | 乗 用:15人乗り 1基 荷搬用:1基 |
| 空調システム | 個別空調 |
| 駐車場 | |
| 駐車料金 | 駐車場1台:20,000円(税別) |
| 付属設備 |
|
| 備考 | 今泉公園・ホテル天神プレイスそば |
| 大型オフィスビル・大型荷搬用EV1基装備 | |
| 各階内装:事務所仕上げ・天井高:2,6m | |
| 定期借家契約5年(再契約可)・保証会社加入必要 |
| 階数 | 面積 | 賃料(総額) | 共益費(総額) | 敷金(総額) | 家賃総額 |
| (坪単価) | (坪単価) | (ヶ月) | |||
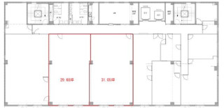
| 7 | 29.73坪(98.28㎡) | 490,550円 | 0円 | 2,943,270円 |
490,550円
[税込:539,605円] |
| @16,500円 | @0円 | 6ヶ月 |
5F-7F
|
|
1F:玄関入口
|

- 5F-7F
- 1F:玄関入口
| ビルNo | 21006 |
|---|---|
| ビル名 | 岩田屋三越今泉ビル |
| 所在地 | 福岡市中央区今泉1-6-1 【地図はこちら】 |
| アクセス | 地下鉄天神南駅より徒歩約5分 |
| アクセス2 | 西鉄薬院駅より徒歩約5分 |
| 階数面積 | 7階 29.73坪(98.28㎡) | |
|---|---|---|
| 賃料 | 総額 | 490,550円 (坪単価 @16,500円) |
| 共益費 | 総額 | 0円 (坪単価 @0円) |
| 敷金 | 総額 | 2,943,270円 (6ヶ月) |
| 家賃総額 | 490,550円 (税込:539,605円) | |
| 付属設備 |
|
|---|
| 駐車場 | |
|---|---|
| 駐車料金 | 駐車場1台:20,000円(税別) |
| 備考 | 今泉公園・ホテル天神プレイスそば |
|---|---|
| 大型オフィスビル・大型荷搬用EV1基装備 | |
| 各階内装:事務所仕上げ・天井高:2,6m | |
| 定期借家契約5年(再契約可)・保証会社加入必要 |
| 構造 | SRC・RC造 地上8階建 |
|---|---|
| 竣工年月 | S63.12完成(1988年) |
| EV | 乗 用:15人乗り 1基 荷搬用:1基 |
| 空調システム | 個別空調 |
〒812-0011 福岡市博多区博多駅前3丁目25番24号 八百治ビル8階 Phone 092-431-6300

福岡の賃貸事務所・賃貸オフィスの不動産会社
【オフィスバンク株式会社】
〒812-0011
福岡県福岡市博多区博多駅前3丁目25番24号八百治ビル8階
Phone 092-431-6300
登録許可 / 福岡県知事(4)第15838号 全国宅地建物取引業保証協会会員
福岡県宅地建物取引業協会会員 福岡商工会議所会員


















