ビルNo:27014
Qiz TENJIN
天神西通り沿い・スターバックス店そばの大型オフィスビル

| 建築・設備概要 | |
| 所在地 | 福岡市中央区大名1-14-45 |
| アクセス1 | 地下鉄天神昇降口:徒歩約5分 |
| アクセス2 | 西鉄バス:今泉1丁目停より徒歩約1分 |
| 構造 | SRC造 地下1階 地上9階建 |
| 竣工年月 | S50.1完成(1975年) |
| エレベーター | 乗 用:13人乗り 3基 |
| 空調システム | 個別空調 |
| 駐車場 | 地下駐車場 28台 |
| 駐車料金 | 駐車場1台:30,000円(税別) 敷金:3ケ月 |
| 付属設備 |
|
| 備考 | 天神西通り沿い・大型オフィスビル |
| 地下1階-3階商業フロア・4階-9階オフィスフロア | |
| 4階-9階内装:事務所仕上げ・天井高2,600mm | |
| 定期借家契約3年(再契約相談可)・保証会社加入必要 |
| 階数 | 面積 | 賃料(総額) | 共益費(総額) | 敷金(総額) | 家賃総額 |
| (坪単価) | (坪単価) | (ヶ月) | |||
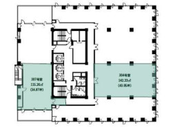
| 3 | 34.87坪(115.27㎡) | 767,140円 | 0円 | 7,671,400円 |
767,140円
[税込:843,854円] |
| @22,000円 | @0円 | 10ヶ月 |
3F
|
|
3F:共用部
|

- 3F
- 3F:共用部
| ビルNo | 27014 |
|---|---|
| ビル名 | Qiz TENJIN |
| 所在地 | 福岡市中央区大名1-14-45 【地図はこちら】 |
| アクセス | 地下鉄天神昇降口:徒歩約5分 |
| アクセス2 | 西鉄バス:今泉1丁目停より徒歩約1分 |
| 階数面積 | 3階 34.87坪(115.27㎡) | |
|---|---|---|
| 賃料 | 総額 | 767,140円 (坪単価 @22,000円) |
| 共益費 | 総額 | 0円 (坪単価 @0円) |
| 敷金 | 総額 | 7,671,400円 (10ヶ月) |
| 家賃総額 | 767,140円 (税込:843,854円) | |
| 付属設備 |
|
|---|
| 駐車場 | 地下駐車場 28台 |
|---|---|
| 駐車料金 | 駐車場1台:30,000円(税別) 敷金:3ケ月 |
| 備考 | 天神西通り沿い・大型オフィスビル |
|---|---|
| 地下1階-3階商業フロア・4階-9階オフィスフロア | |
| 4階-9階内装:事務所仕上げ・天井高2,600mm | |
| 定期借家契約3年(再契約相談可)・保証会社加入必要 |
| 構造 | SRC造 地下1階 地上9階建 |
|---|---|
| 竣工年月 | S50.1完成(1975年) |
| EV | 乗 用:13人乗り 3基 |
| 空調システム | 個別空調 |
〒812-0011 福岡市博多区博多駅前3丁目25番24号 八百治ビル8階 Phone 092-431-6300

福岡の賃貸事務所・賃貸オフィスの不動産会社
【オフィスバンク株式会社】
〒812-0011
福岡県福岡市博多区博多駅前3丁目25番24号八百治ビル8階
Phone 092-431-6300
登録許可 / 福岡県知事(4)第15838号 全国宅地建物取引業保証協会会員
福岡県宅地建物取引業協会会員 福岡商工会議所会員


















