ビルNo:18151
D-LIFEPLACE呉服町
呉服町交差点角地・令和2年2月完成の大型オフィスビル

| 建築・設備概要 | |
| 所在地 | 福岡市博多区綱場町1-1 |
| アクセス1 | 地下鉄呉服町昇降口前 |
| アクセス2 | 地下鉄川端駅より徒歩約5分 |
| 構造 | RC造 地上11階建 |
| 竣工年月 | R2.2完成(2020年) |
| エレベーター | 乗 用:15人乗り 3基 |
| 空調システム | 個別空調 |
| 駐車場 | 立体駐車場 38台 平面駐車場 2台 |
| 駐車料金 | 駐車場1台:45,000円(税別) 敷金:6ケ月 |
| 付属設備 |
|
| 備考 | 呉服町交差点角地・令和2年2月完成 |
| 大型オフィスビル・内装事務所仕上げ・OAフロア | |
| 大型荷搬用EV:1基装備・天井高:2,700㎜ | |
| 床荷重㎡/500kg(一部)・スプリンクラー装備 |
| 階数 | 面積 | 賃料(総額) | 共益費(総額) | 敷金(総額) | 家賃総額 |
| (坪単価) | (坪単価) | (ヶ月) | |||
| 7 | 54.13坪(178.94㎡) | 1,082,600円 | 0円 | 10,826,000円 |
1,082,600円
[税込:1,190,860円] |
| @20,000円 | @0円 | 10ヶ月 |
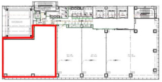
7F:54坪
|
|
55坪タイプ
|

- 7F:54坪
- 55坪タイプ
| ビルNo | 18151 |
|---|---|
| ビル名 | D-LIFEPLACE呉服町 |
| 所在地 | 福岡市博多区綱場町1-1 【地図はこちら】 |
| アクセス | 地下鉄呉服町昇降口前 |
| アクセス2 | 地下鉄川端駅より徒歩約5分 |
| 階数面積 | 7階 54.13坪(178.94㎡) | |
|---|---|---|
| 賃料 | 総額 | 1,082,600円 (坪単価 @20,000円) |
| 共益費 | 総額 | 0円 (坪単価 @0円) |
| 敷金 | 総額 | 10,826,000円 (10ヶ月) |
| 家賃総額 | 1,082,600円 (税込:1,190,860円) | |
| 付属設備 |
|
|---|
| 駐車場 | 立体駐車場 38台 平面駐車場 2台 |
|---|---|
| 駐車料金 | 駐車場1台:45,000円(税別) 敷金:6ケ月 |
| 備考 | 呉服町交差点角地・令和2年2月完成 |
|---|---|
| 大型オフィスビル・内装事務所仕上げ・OAフロア | |
| 大型荷搬用EV:1基装備・天井高:2,700㎜ | |
| 床荷重㎡/500kg(一部)・スプリンクラー装備 |
| 構造 | RC造 地上11階建 |
|---|---|
| 竣工年月 | R2.2完成(2020年) |
| EV | 乗 用:15人乗り 3基 |
| 空調システム | 個別空調 |
〒812-0011 福岡市博多区博多駅前3丁目25番24号 八百治ビル8階 Phone 092-431-6300

福岡の賃貸事務所・賃貸オフィスの不動産会社
【オフィスバンク株式会社】
〒812-0011
福岡県福岡市博多区博多駅前3丁目25番24号八百治ビル8階
Phone 092-431-6300
登録許可 / 福岡県知事(4)第15838号 全国宅地建物取引業保証協会会員
福岡県宅地建物取引業協会会員 福岡商工会議所会員


















