ビルNo:10013
三共福岡ビル
百年橋通り沿い・宮島交差点そば・大型オフィスビル

| 建築・設備概要 | |
| 所在地 | 福岡市博多区博多駅南2-9-11 |
| アクセス1 | JR博多駅より徒歩約11分 |
| アクセス2 | 西鉄バス駅南3丁目:徒歩約2分 |
| 構造 | SRC造 地下2階 地上9階建 |
| 竣工年月 | S50.3完成(1975年) |
| エレベーター | 乗 用:15人乗り 3基 |
| 空調システム | 個別空調 |
| 駐車場 | 地下駐車場 50台 |
| 駐車料金 | 駐車場1台:25,000円(税別) 敷金:1ケ月 |
| 付属設備 |
|
| 備考 | 百年橋通り沿い・宮島交差点そば |
| 大型オフィスビル | |
| 各階内装:事務所仕上げ・OAフロア | |
| 地下駐車場:大型・ハイルーフ車OK |
| 階数 | 面積 | 賃料(総額) | 共益費(総額) | 敷金(総額) | 家賃総額 |
| (坪単価) | (坪単価) | (ヶ月) | |||
| 8 | 76.46坪(252.76㎡) | 764,600円 | 0円 | 7,646,000円 |
764,600円
[税込:841,060円] |
| @10,000円 | @0円 | 10ヶ月 |
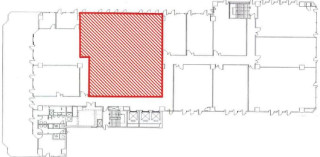
8F:76.46坪
|
|
貸室イメージ・後面
|

- 8F:76.46坪
- 貸室イメージ・後面
| ビルNo | 10013 |
|---|---|
| ビル名 | 三共福岡ビル |
| 所在地 | 福岡市博多区博多駅南2-9-11 【地図はこちら】 |
| アクセス | JR博多駅より徒歩約11分 |
| アクセス2 | 西鉄バス駅南3丁目:徒歩約2分 |
| 階数面積 | 8階 76.46坪(252.76㎡) | |
|---|---|---|
| 賃料 | 総額 | 764,600円 (坪単価 @10,000円) |
| 共益費 | 総額 | 0円 (坪単価 @0円) |
| 敷金 | 総額 | 7,646,000円 (10ヶ月) |
| 家賃総額 | 764,600円 (税込:841,060円) | |
| 付属設備 |
|
|---|
| 駐車場 | 地下駐車場 50台 |
|---|---|
| 駐車料金 | 駐車場1台:25,000円(税別) 敷金:1ケ月 |
| 備考 | 百年橋通り沿い・宮島交差点そば |
|---|---|
| 大型オフィスビル | |
| 各階内装:事務所仕上げ・OAフロア | |
| 地下駐車場:大型・ハイルーフ車OK |
| 構造 | SRC造 地下2階 地上9階建 |
|---|---|
| 竣工年月 | S50.3完成(1975年) |
| EV | 乗 用:15人乗り 3基 |
| 空調システム | 個別空調 |
〒812-0011 福岡市博多区博多駅前3丁目25番24号 八百治ビル8階 Phone 092-431-6300

福岡の賃貸事務所・賃貸オフィスの不動産会社
【オフィスバンク株式会社】
〒812-0011
福岡県福岡市博多区博多駅前3丁目25番24号八百治ビル8階
Phone 092-431-6300
登録許可 / 福岡県知事(4)第15838号 全国宅地建物取引業保証協会会員
福岡県宅地建物取引業協会会員 福岡商工会議所会員


















