ビルNo:21002
綾杉ビル
明治通り沿い・アクロス福岡ビル前の大型オフィスビル

| 建築・設備概要 | |
| 所在地 | 福岡市中央区天神1-15-6 |
| アクセス1 | 地下鉄天神昇降口:徒歩約2分 |
| アクセス2 | 西鉄バス:天神四丁目より徒歩約3分 |
| 構造 | SRC造 地下1階 地上8階建 |
| 竣工年月 | H1.8完成(1989年) |
| エレベーター | 乗 用:15人乗り 3基 |
| 空調システム | 個別空調 |
| 駐車場 | 自走式駐車場 280台 |
| 駐車料金 | 平面駐車1台:36,000円(税別)敷金: 無し |
| 付属設備 |
|
| 備考 | 明治通り沿い・アクロス福岡ビル前の大型オフィスビル |
| 各階内装:事務所仕上げ・OAフロア | |
| 天井高:2650㎜・省エネ型LED照明装備 | |
| 定借契約2年(再契約不可・延長1年~2年相談可) |
| 階数 | 面積 | 賃料(総額) | 共益費(総額) | 敷金(総額) | 家賃総額 |
| (坪単価) | (坪単価) | (ヶ月) | |||
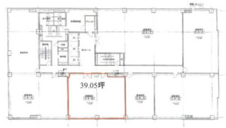
| 4 | 39.05坪(129.09㎡) | 741,950円 | 0円 | 7,419,500円 |
741,950円
[税込:816,145円] |
| @19,000円 | @0円 | 10ヶ月 |
5F:39坪
|
|
1F:エレベーターホール
|

- 5F:39坪
- 1F:エレベーターホール
| ビルNo | 21002 |
|---|---|
| ビル名 | 綾杉ビル |
| 所在地 | 福岡市中央区天神1-15-6 【地図はこちら】 |
| アクセス | 地下鉄天神昇降口:徒歩約2分 |
| アクセス2 | 西鉄バス:天神四丁目より徒歩約3分 |
| 階数面積 | 4階 39.05坪(129.09㎡) | |
|---|---|---|
| 賃料 | 総額 | 741,950円 (坪単価 @19,000円) |
| 共益費 | 総額 | 0円 (坪単価 @0円) |
| 敷金 | 総額 | 7,419,500円 (10ヶ月) |
| 家賃総額 | 741,950円 (税込:816,145円) | |
| 付属設備 |
|
|---|
| 駐車場 | 自走式駐車場 280台 |
|---|---|
| 駐車料金 | 平面駐車1台:36,000円(税別)敷金: 無し |
| 備考 | 明治通り沿い・アクロス福岡ビル前の大型オフィスビル |
|---|---|
| 各階内装:事務所仕上げ・OAフロア | |
| 天井高:2650㎜・省エネ型LED照明装備 | |
| 定借契約2年(再契約不可・延長1年~2年相談可) |
| 構造 | SRC造 地下1階 地上8階建 |
|---|---|
| 竣工年月 | H1.8完成(1989年) |
| EV | 乗 用:15人乗り 3基 |
| 空調システム | 個別空調 |
〒812-0011 福岡市博多区博多駅前3丁目25番24号 八百治ビル8階 Phone 092-431-6300

福岡の賃貸事務所・賃貸オフィスの不動産会社
【オフィスバンク株式会社】
〒812-0011
福岡県福岡市博多区博多駅前3丁目25番24号八百治ビル8階
Phone 092-431-6300
登録許可 / 福岡県知事(4)第15838号 全国宅地建物取引業保証協会会員
福岡県宅地建物取引業協会会員 福岡商工会議所会員


















