ビルNo:13074
興産ビル
キャナルシティそば・バス通り沿い角地のオフィスビル

| 建築・設備概要 | |
| 所在地 | 福岡市博多区博多駅前3-16-10 |
| アクセス1 | JR博多駅より徒歩約8分 |
| アクセス2 | |
| 構造 | RC造 地下1階地上9階建 |
| 竣工年月 | S49.4完成(1974年) |
| エレベーター | 乗 用:15人乗り 1基 |
| 空調システム | 個別空調 |
| 駐車場 | 立体駐車場 32台 |
| 駐車料金 | 駐車場1台:15,000円(税別) 敷金:1ケ月 |
| 付属設備 |
|
| 備考 | キャナルシティそば・TVQビル斜め前 |
| バス通り沿い角地のオフィスビル | |
| 各階内装:事務所仕上げ | |
| 耐震補強工事完了・保証会社加入必要 |
| 階数 | 面積 | 賃料(総額) | 共益費(総額) | 敷金(総額) | 家賃総額 |
| (坪単価) | (坪単価) | (ヶ月) | |||
| 6 | 38.10坪(125.95㎡) | 323,850円 | 57,150円 | 1,943,100円 |
381,000円
[税込:419,100円] |
| @8,500円 | @1,500円 | 6ヶ月 |
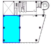
38坪タイプ
|
|
1F:エレベーターホール
|

- 38坪タイプ
- 1F:エレベーターホール
| ビルNo | 13074 |
|---|---|
| ビル名 | 興産ビル |
| 所在地 | 福岡市博多区博多駅前3-16-10 【地図はこちら】 |
| アクセス | JR博多駅より徒歩約8分 |
| 階数面積 | 6階 38.10坪(125.95㎡) | |
|---|---|---|
| 賃料 | 総額 | 323,850円 (坪単価 @8,500円) |
| 共益費 | 総額 | 57,150円 (坪単価 @1,500円) |
| 敷金 | 総額 | 1,943,100円 (6ヶ月) |
| 家賃総額 | 381,000円 (税込:419,100円) | |
| 付属設備 |
|
|---|
| 駐車場 | 立体駐車場 32台 |
|---|---|
| 駐車料金 | 駐車場1台:15,000円(税別) 敷金:1ケ月 |
| 備考 | キャナルシティそば・TVQビル斜め前 |
|---|---|
| バス通り沿い角地のオフィスビル | |
| 各階内装:事務所仕上げ | |
| 耐震補強工事完了・保証会社加入必要 |
| 構造 | RC造 地下1階地上9階建 |
|---|---|
| 竣工年月 | S49.4完成(1974年) |
| EV | 乗 用:15人乗り 1基 |
| 空調システム | 個別空調 |
〒812-0011 福岡市博多区博多駅前3丁目25番24号 八百治ビル8階 Phone 092-431-6300

福岡の賃貸事務所・賃貸オフィスの不動産会社
【オフィスバンク株式会社】
〒812-0011
福岡県福岡市博多区博多駅前3丁目25番24号八百治ビル8階
Phone 092-431-6300
登録許可 / 福岡県知事(4)第15838号 全国宅地建物取引業保証協会会員
福岡県宅地建物取引業協会会員 福岡商工会議所会員


















