ビルNo:29127
六本松SKビル
六本松交差点角地・大型オフィスビル・平成31年3月完成

| 建築・設備概要 | |
| 所在地 | 福岡市中央区六本松2-3-6 |
| アクセス1 | 地下鉄六本松駅より徒歩約3分 |
| アクセス2 | 西鉄バス:六本松より徒歩約1分 |
| 構造 | RC造 地上10階建 |
| 竣工年月 | H31.3完成(2019年) |
| エレベーター | 乗 用:13人乗り 2基 |
| 空調システム | 個別空調 |
| 駐車場 | --- 無し --- |
| 駐車料金 | ---------- |
| 付属設備 |
|
| 備考 | 六本松交差点角地・大型オフィスビル |
| 4階-9階:オフィスフロア・平成31年3月完成 | |
| 各階内装:事務所仕上げ・OAフロア・天井高2.7m | |
| 定期借家契約5年(再契約相談可)・保証会社加入必要 |
| 階数 | 面積 | 賃料(総額) | 共益費(総額) | 敷金(総額) | 家賃総額 |
| (坪単価) | (坪単価) | (ヶ月) | |||
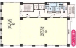
| 8 | 103.34坪(341.62㎡) | 1,756,780円 | 0円 | 17,567,800円 |
1,756,780円
[税込:1,932,458円] |
| @17,000円 | @0円 | 10ヶ月 |
8F
|
|
1F:玄関入口
|

- 8F
- 1F:玄関入口
| ビルNo | 29127 |
|---|---|
| ビル名 | 六本松SKビル |
| 所在地 | 福岡市中央区六本松2-3-6 【地図はこちら】 |
| アクセス | 地下鉄六本松駅より徒歩約3分 |
| アクセス2 | 西鉄バス:六本松より徒歩約1分 |
| 階数面積 | 8階 103.34坪(341.62㎡) | |
|---|---|---|
| 賃料 | 総額 | 1,756,780円 (坪単価 @17,000円) |
| 共益費 | 総額 | 0円 (坪単価 @0円) |
| 敷金 | 総額 | 17,567,800円 (10ヶ月) |
| 家賃総額 | 1,756,780円 (税込:1,932,458円) | |
| 付属設備 |
|
|---|
| 駐車場 | --- 無し --- |
|---|---|
| 駐車料金 | ---------- |
| 備考 | 六本松交差点角地・大型オフィスビル |
|---|---|
| 4階-9階:オフィスフロア・平成31年3月完成 | |
| 各階内装:事務所仕上げ・OAフロア・天井高2.7m | |
| 定期借家契約5年(再契約相談可)・保証会社加入必要 |
| 構造 | RC造 地上10階建 |
|---|---|
| 竣工年月 | H31.3完成(2019年) |
| EV | 乗 用:13人乗り 2基 |
| 空調システム | 個別空調 |
〒812-0011 福岡市博多区博多駅前3丁目25番24号 八百治ビル8階 Phone 092-431-6300

福岡の賃貸事務所・賃貸オフィスの不動産会社
【オフィスバンク株式会社】
〒812-0011
福岡県福岡市博多区博多駅前3丁目25番24号八百治ビル8階
Phone 092-431-6300
登録許可 / 福岡県知事(4)第15838号 全国宅地建物取引業保証協会会員
福岡県宅地建物取引業協会会員 福岡商工会議所会員


















