キャナルシティ博多前・令和2年5月完成の商業店舗ビル
フィル・パーク博多キャナルシティサイド
ビルNo:18157

| 建築・設備概要 | |
| 所在地 | 福岡市博多区住吉2-16-38 |
| アクセス | JR博多駅より徒歩約10分 |
| 構造 | S造 地上6階建 |
| 竣工年月 | R2.5完成(2020年) |
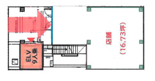
| エレベーター | 乗 用:9人乗り 1基 |
| 駐車場 | --- 無し --- |
| 駐車料金 | ---------- |
| 入居可能日 | 2026年9月1日入居可 |
| 備考 | キャナルシティ博多前そば・どろんこ保育園前 |
| 令和2年5月完成の商業店舗ビル | |
| 1フロア:1社タイプ・各階内装:スケルトン渡し | |
| 定期借家契約(年数相談)・保証会社加入必要 |
| 階数 | 面積 | 賃料(総額) | 共益費(総額) | 敷金(総額) | 家賃総額 |
| (坪単価) | (坪単価) | (ヶ月) | |||
| 1 | 16 .72 坪(55.27㎡) | 580,000円 | 0円 | 580,000円 |
580,000円
[税込:638,000円] |
| @34,689円 | @0円 | 1ヶ月 |
1F
|
|
1F:16坪
|

- 1F
- 1F:16坪
| 建築・設備概要 | |
|---|---|
| 所在地 | 福岡市博多区住吉2-16-38 【地図はこちら】 |
| アクセス | JR博多駅より徒歩約10分 |
| 構造 | S造 地上6階建 |
| 竣工年月 | R2.5完成(2020年) |
| EV | 乗 用:9人乗り 1基 |
| 駐車場 | --- 無し --- |
| 駐車料金 | ---------- |
| 備考 | キャナルシティ博多前そば・どろんこ保育園前 |
|---|---|
| 令和2年5月完成の商業店舗ビル | |
| 1フロア:1社タイプ・各階内装:スケルトン渡し | |
| 定期借家契約(年数相談)・保証会社加入必要 |
| 階数面積 | 1階 16.72坪(55.27㎡) | |
|---|---|---|
| 賃料 | 総額 | 580,000円 (坪単価 @34,689円) |
| 共益費 | 総額 | 0円 (坪単価 @0円) |
| 敷金 | 総額 | 580,000円 (1ヶ月) |
| 家賃総額 | 580,000円 (税込:638,000円) | |
〒812-0011 福岡市博多区博多駅前3丁目25番24号 八百治ビル8階 Phone 092-431-6300

福岡の賃貸事務所・賃貸オフィスの不動産会社
【オフィスバンク株式会社】
〒812-0011
福岡県福岡市博多区博多駅前3丁目25番24号八百治ビル8階
Phone 092-431-6300
登録許可 / 福岡県知事(4)第15838号 全国宅地建物取引業保証協会会員
福岡県宅地建物取引業協会会員 福岡商工会議所会員


















