天神西通りそば・きらめき通り沿い・商業店舗ビル
ジェムキャッスルきらめき通り
ビルNo:24074

| 建築・設備概要 | |
| 所在地 | 福岡市中央区天神2-6-13 |
| アクセス | 地下鉄天神昇降口より徒歩約4分 |
| 構造 | RC造 地上5階建 |
| 竣工年月 | S53.3完成(1978年) |
| エレベーター | 乗 用:6人乗り 1基 |
| 駐車場 | --- 無し --- |
| 駐車料金 | ---------- |
| 入居可能日 | 2026年6月下旬入居可 |
| 備考 | 天神西通りそば・きらめき通り沿い |
| 1フロア・1テナントタイプの商業店舗事務所ビル | |
| 各階内装:現状渡しorスケルトン渡し | |
| 定期借家契約7年(再契約可)・保証会社加入必要 |
| 階数 | 面積 | 賃料(総額) | 共益費(総額) | 敷金(総額) | 家賃総額 |
| (坪単価) | (坪単価) | (ヶ月) | |||
| 2 | 33 .52 坪(110.81㎡) | 1,508,400円 | 0円 | 4,525,200円 |
1,508,400円
[税込:1,659,240円] |
| @45,000円 | @0円 | 3ヶ月 |
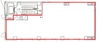
2F
|
|
1F:玄関入口
|

- 2F
- 1F:玄関入口
| 建築・設備概要 | |
|---|---|
| 所在地 | 福岡市中央区天神2-6-13 【地図はこちら】 |
| アクセス | 地下鉄天神昇降口より徒歩約4分 |
| 構造 | RC造 地上5階建 |
| 竣工年月 | S53.3完成(1978年) |
| EV | 乗 用:6人乗り 1基 |
| 駐車場 | --- 無し --- |
| 駐車料金 | ---------- |
| 備考 | 天神西通りそば・きらめき通り沿い |
|---|---|
| 1フロア・1テナントタイプの商業店舗事務所ビル | |
| 各階内装:現状渡しorスケルトン渡し | |
| 定期借家契約7年(再契約可)・保証会社加入必要 |
| 階数面積 | 2階 33.52坪(110.81㎡) | |
|---|---|---|
| 賃料 | 総額 | 1,508,400円 (坪単価 @45,000円) |
| 共益費 | 総額 | 0円 (坪単価 @0円) |
| 敷金 | 総額 | 4,525,200円 (3ヶ月) |
| 家賃総額 | 1,508,400円 (税込:1,659,240円) | |
〒812-0011 福岡市博多区博多駅前3丁目25番24号 八百治ビル8階 Phone 092-431-6300

福岡の賃貸事務所・賃貸オフィスの不動産会社
【オフィスバンク株式会社】
〒812-0011
福岡県福岡市博多区博多駅前3丁目25番24号八百治ビル8階
Phone 092-431-6300
登録許可 / 福岡県知事(4)第15838号 全国宅地建物取引業保証協会会員
福岡県宅地建物取引業協会会員 福岡商工会議所会員


















