天神親不孝通りそばのマンションタイプを事務所タイプにコンバージョン
サン・ミリオン天神
ビルNo:23120

| 建築・設備概要 | |
| 所在地 | 福岡市中央区天神3-6-23 |
| アクセス | 地下鉄天神昇降口より徒歩6分 |
| 構造 | RC造 地上5階建 |
| 竣工年月 | S55.1完成(1980年) |
| エレベーター | 乗 用:6人乗り 1基 |
| 駐車場 | --- 無し --- |
| 駐車料金 | ---------- |
| 入居可能日 | |
| 備考 | 天神親不孝通りそばの複合ビル |
| マンションタイプを事務所改造タイプ変更 | |
| 水道代:月/2,500円(税別)必要 | |
| 保証会社加入必要・テナント総合保険加入必要 |
| 階数 | 面積 | 賃料(総額) | 共益費(総額) | 敷金(総額) | 家賃総額 |
| (坪単価) | (坪単価) | (ヶ月) | |||
| 5 | 9 .68 坪(32㎡) | 100,000円 | 0円 | 200,000円 |
100,000円
[税込:110,000円] |
| @10,331円 | @0円 | 2ヶ月 |
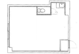
9.68坪:32㎡タイプ
|
|
32㎡タイプ
|

- 9.68坪:32㎡タイプ
- 32㎡タイプ
| 建築・設備概要 | |
|---|---|
| 所在地 | 福岡市中央区天神3-6-23 【地図はこちら】 |
| アクセス | 地下鉄天神昇降口より徒歩6分 |
| 構造 | RC造 地上5階建 |
| 竣工年月 | S55.1完成(1980年) |
| EV | 乗 用:6人乗り 1基 |
| 駐車場 | --- 無し --- |
| 駐車料金 | ---------- |
| 備考 | 天神親不孝通りそばの複合ビル |
|---|---|
| マンションタイプを事務所改造タイプ変更 | |
| 水道代:月/2,500円(税別)必要 | |
| 保証会社加入必要・テナント総合保険加入必要 |
| 階数面積 | 5階 9.68坪(32㎡) | |
|---|---|---|
| 賃料 | 総額 | 100,000円 (坪単価 @10,331円) |
| 共益費 | 総額 | 0円 (坪単価 @0円) |
| 敷金 | 総額 | 200,000円 (2ヶ月) |
| 家賃総額 | 100,000円 (税込:110,000円) | |
〒812-0011 福岡市博多区博多駅前3丁目25番24号 八百治ビル8階 Phone 092-431-6300

福岡の賃貸事務所・賃貸オフィスの不動産会社
【オフィスバンク株式会社】
〒812-0011
福岡県福岡市博多区博多駅前3丁目25番24号八百治ビル8階
Phone 092-431-6300
登録許可 / 福岡県知事(4)第15838号 全国宅地建物取引業保証協会会員
福岡県宅地建物取引業協会会員 福岡商工会議所会員


















