明治通り沿い・土居町交差点角地の複合ビル
チェリス川端
ビルNo:16070

| 建築・設備概要 | |
| 所在地 | 福岡市博多区上川端14-20 |
| アクセス | 地下鉄:中洲川端昇降口より徒歩約2分 西鉄バス:土居町より徒歩約1分 |
| 構造 | RC造 地上11階建 |
| 竣工年月 | S56.9完成(1981年) |
| エレベーター | 乗 用:9人乗り 1基 |
| 駐車場 | --- 無し --- |
| 駐車料金 | ---------- |
| 入居可能日 | 2025年11月30日退去 |
| 備考 | 明治通り沿い・土居町交差点角地の複合ビル |
| 3階以上:賃貸マンション・多数企業入居 | |
| 保証会社加入必要・テナント総合保険加入必要 | |
| 階数 | 面積 | 賃料(総額) | 共益費(総額) | 敷金(総額) | 家賃総額 |
| (坪単価) | (坪単価) | (ヶ月) | |||
| 4 | 13 .21 坪(43.67㎡) | 90,910円 | 0円 | 545,460円 |
90,910円
[税込:100,001円] |
| @6,882円 | @0円 | 6ヶ月 |
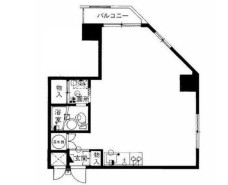
4F:13.21坪:43㎡
|
|
1F:玄関入口
|

- 4F:13.21坪:43㎡
- 1F:玄関入口
| 建築・設備概要 | |
|---|---|
| 所在地 | 福岡市博多区上川端14-20 【地図はこちら】 |
| アクセス | 地下鉄:中洲川端昇降口より徒歩約2分 |
| アクセス2 | 西鉄バス:土居町より徒歩約1分 |
| 構造 | RC造 地上11階建 |
| 竣工年月 | S56.9完成(1981年) |
| EV | 乗 用:9人乗り 1基 |
| 駐車場 | --- 無し --- |
| 駐車料金 | ---------- |
| 備考 | 明治通り沿い・土居町交差点角地の複合ビル |
|---|---|
| 3階以上:賃貸マンション・多数企業入居 | |
| 保証会社加入必要・テナント総合保険加入必要 |
| 階数面積 | 4階 13.21坪(43.67㎡) | |
|---|---|---|
| 賃料 | 総額 | 90,910円 (坪単価 @6,882円) |
| 共益費 | 総額 | 0円 (坪単価 @0円) |
| 敷金 | 総額 | 545,460円 (6ヶ月) |
| 家賃総額 | 90,910円 (税込:100,001円) | |
〒812-0011 福岡市博多区博多駅前3丁目25番24号 八百治ビル8階 Phone 092-431-6300

福岡の賃貸事務所・賃貸オフィスの不動産会社
【オフィスバンク株式会社】
〒812-0011
福岡県福岡市博多区博多駅前3丁目25番24号八百治ビル8階
Phone 092-431-6300
登録許可 / 福岡県知事(4)第15838号 全国宅地建物取引業保証協会会員
福岡県宅地建物取引業協会会員 福岡商工会議所会員


















