冷泉公園そば・2階窓面が広い・1フロア:1社タイプの複合ビル
冷泉公園ビル
ビルNo:10074

| 建築・設備概要 | |
| 所在地 | 福岡市博多区上川端町9-27 |
| アクセス | 地下鉄中洲川端昇降口より徒歩約4分 |
| 構造 | S造 地上4階建 |
| 竣工年月 | H7.4完成(1995年) |
| エレベーター | --- 無し --- |
| 駐車場 | --- 無し --- |
| 駐車料金 | ---------- |
| 入居可能日 | |
| 備考 | 冷泉公園そばの複合ビル |
| 2階:窓面が広い・1フロア:1社タイプ | |
| 2階内装:事務所仕上げ | |
| 定期借家契約5年(再契約可)・保証会社加入必要 |
| 階数 | 面積 | 賃料(総額) | 共益費(総額) | 敷金(総額) | 家賃総額 |
| (坪単価) | (坪単価) | (ヶ月) | |||
| 2 | 15 .18 坪(50.18㎡) | 197,340円 | 0円 | 592,020円 |
197,340円
[税込:217,074円] |
| @13,000円 | @0円 | 3ヶ月 |
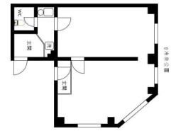
2F:15.18坪
|
|
2F:15.18坪
|

- 2F:15.18坪
- 2F:15.18坪
| 建築・設備概要 | |
|---|---|
| 所在地 | 福岡市博多区上川端町9-27 【地図はこちら】 |
| アクセス | 地下鉄中洲川端昇降口より徒歩約4分 |
| 構造 | S造 地上4階建 |
| 竣工年月 | H7.4完成(1995年) |
| EV | --- 無し --- |
| 駐車場 | --- 無し --- |
| 駐車料金 | ---------- |
| 備考 | 冷泉公園そばの複合ビル |
|---|---|
| 2階:窓面が広い・1フロア:1社タイプ | |
| 2階内装:事務所仕上げ | |
| 定期借家契約5年(再契約可)・保証会社加入必要 |
| 階数面積 | 2階 15.18坪(50.18㎡) | |
|---|---|---|
| 賃料 | 総額 | 197,340円 (坪単価 @13,000円) |
| 共益費 | 総額 | 0円 (坪単価 @0円) |
| 敷金 | 総額 | 592,020円 (3ヶ月) |
| 家賃総額 | 197,340円 (税込:217,074円) | |
〒812-0011 福岡市博多区博多駅前3丁目25番24号 八百治ビル8階 Phone 092-431-6300

福岡の賃貸事務所・賃貸オフィスの不動産会社
【オフィスバンク株式会社】
〒812-0011
福岡県福岡市博多区博多駅前3丁目25番24号八百治ビル8階
Phone 092-431-6300
登録許可 / 福岡県知事(4)第15838号 全国宅地建物取引業保証協会会員
福岡県宅地建物取引業協会会員 福岡商工会議所会員


















