日航ホテル福岡そば・角地のオフィスビル
JR博多駅前第一ビル
ビルNo:10009

| 建築・設備概要 | |
| 所在地 | 福岡市博多区博多駅前2-17-19 |
| アクセス | JR博多駅より徒歩約3分 |
| 構造 | SRC造地下1階 地上9階建 |
| 竣工年月 | H8.6完成(1996年) |
| エレベーター | 乗 用:11人乗り 2基 |
| 駐車場 | 立体駐車場 14台 |
| 駐車料金 | 駐車場1台:30,000円(税別) 敷金:3ケ月 |
| 入居可能日 | 2026年4月15日入居可 |
| 備考 | 日航ホテル福岡そば・角地のオフィスビル |
| 1階内装:事務所仕上げ | |
| 1階:給排水無し・引込不可 | |
| 階数 | 面積 | 賃料(総額) | 共益費(総額) | 敷金(総額) | 家賃総額 |
| (坪単価) | (坪単価) | (ヶ月) | |||
| 1 | 9 .47 坪(31.31㎡) | 208,340円 | 0円 | 2,500,080円 |
208,340円
[税込:229,174円] |
| @22,000円 | @0円 | 12ヶ月 |
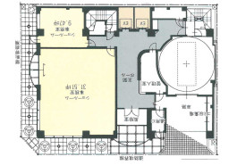
1F
|
|
1F:9坪
|

- 1F
- 1F:9坪
| 建築・設備概要 | |
|---|---|
| 所在地 | 福岡市博多区博多駅前2-17-19 【地図はこちら】 |
| アクセス | JR博多駅より徒歩約3分 |
| 構造 | SRC造地下1階 地上9階建 |
| 竣工年月 | H8.6完成(1996年) |
| EV | 乗 用:11人乗り 2基 |
| 駐車場 | 立体駐車場 14台 |
| 駐車料金 | 駐車場1台:30,000円(税別) 敷金:3ケ月 |
| 備考 | 日航ホテル福岡そば・角地のオフィスビル |
|---|---|
| 1階内装:事務所仕上げ | |
| 1階:給排水無し・引込不可 |
| 階数面積 | 1階 9.47坪(31.31㎡) | |
|---|---|---|
| 賃料 | 総額 | 208,340円 (坪単価 @22,000円) |
| 共益費 | 総額 | 0円 (坪単価 @0円) |
| 敷金 | 総額 | 2,500,080円 (12ヶ月) |
| 家賃総額 | 208,340円 (税込:229,174円) | |
〒812-0011 福岡市博多区博多駅前3丁目25番24号 八百治ビル8階 Phone 092-431-6300

福岡の賃貸事務所・賃貸オフィスの不動産会社
【オフィスバンク株式会社】
〒812-0011
福岡県福岡市博多区博多駅前3丁目25番24号八百治ビル8階
Phone 092-431-6300
登録許可 / 福岡県知事(4)第15838号 全国宅地建物取引業保証協会会員
福岡県宅地建物取引業協会会員 福岡商工会議所会員


















