JR香椎駅徒歩約1分・斬新な外観の商業店舗ビル・令和6年11月完成
ALHAMBRAビル
ビルNo:40082

| 建築・設備概要 | |
| 所在地 | 福岡市東区香椎駅前1-14-1 |
| アクセス | JR香椎駅より徒歩約1分 西鉄電車香椎駅より徒歩約3分 |
| 構造 | RC造 地上4階建 |
| 竣工年月 | R6.11完成(2024年) |
| エレベーター | 乗 用:9人乗り 1基 |
| 駐車場 | --- 無し --- |
| 駐車料金 | ---------- |
| 入居可能日 | |
| 備考 | JR香椎駅徒歩約1分・令和6年11月完成 |
| 1フロア:1社タイプの商業店舗ビル | |
| 各階内装:スケルトン渡し・飲食店相談可 | |
| 定期借家契約10年(再契約可)・保証会社加入必要 |
| 階数 | 面積 | 賃料(総額) | 共益費(総額) | 敷金(総額) | 家賃総額 |
| (坪単価) | (坪単価) | (ヶ月) | |||
| 4 | 22 .99 坪(76㎡) | 345,000円 | 23,000円 | 2,070,000円 |
368,000円
[税込:404,800円] |
| @15,007円 | @1,000円 | 6ヶ月 |
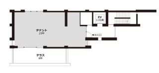
4F:22.99坪
|
|
貸室イメージ
|

- 4F:22.99坪
- 貸室イメージ
| 建築・設備概要 | |
|---|---|
| 所在地 | 福岡市東区香椎駅前1-14-1 【地図はこちら】 |
| アクセス | JR香椎駅より徒歩約1分 |
| アクセス2 | 西鉄電車香椎駅より徒歩約3分 |
| 構造 | RC造 地上4階建 |
| 竣工年月 | R6.11完成(2024年) |
| EV | 乗 用:9人乗り 1基 |
| 駐車場 | --- 無し --- |
| 駐車料金 | ---------- |
| 備考 | JR香椎駅徒歩約1分・令和6年11月完成 |
|---|---|
| 1フロア:1社タイプの商業店舗ビル | |
| 各階内装:スケルトン渡し・飲食店相談可 | |
| 定期借家契約10年(再契約可)・保証会社加入必要 |
| 階数面積 | 4階 22.99坪(76㎡) | |
|---|---|---|
| 賃料 | 総額 | 345,000円 (坪単価 @15,007円) |
| 共益費 | 総額 | 23,000円 (坪単価 @1,000円) |
| 敷金 | 総額 | 2,070,000円 (6ヶ月) |
| 家賃総額 | 368,000円 (税込:404,800円) | |
〒812-0011 福岡市博多区博多駅前3丁目25番24号 八百治ビル8階 Phone 092-431-6300

福岡の賃貸事務所・賃貸オフィスの不動産会社
【オフィスバンク株式会社】
〒812-0011
福岡県福岡市博多区博多駅前3丁目25番24号八百治ビル8階
Phone 092-431-6300
登録許可 / 福岡県知事(4)第15838号 全国宅地建物取引業保証協会会員
福岡県宅地建物取引業協会会員 福岡商工会議所会員


















