大橋駅東口:ローターリーそば・商業店舗ビル・令和7年12月完成
RE SECOND
ビルNo:60215

| 建築・設備概要 | |
| 所在地 | 福岡市南区大橋1-2-15 |
| アクセス | 西鉄大牟田線:大橋駅より徒歩約1分 |
| 構造 | S造 地上5階建 |
| 竣工年月 | R7.12完成(2025年) |
| エレベーター | 乗 用:11人乗り 2基 |
| 駐車場 | --- 無し --- |
| 駐車料金 | ---------- |
| 入居可能日 | |
| 備考 | 大橋駅東口:ローターリーそば・令和7年12月完成 |
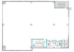
| 1フロア:1社タイプの商業店舗ビル | |
| 各階内装:スケルトン渡し | |
| 定期借家契約20年(再契約可)・保証会社加入必要 |
| 階数 | 面積 | 賃料(総額) | 共益費(総額) | 敷金(総額) | 家賃総額 |
| (坪単価) | (坪単価) | (ヶ月) | |||
| 4 | 111 .66 坪(369.12㎡) | 1,400,000円 | 0円 | 14,000,000円 |
1,400,000円
[税込:1,540,000円] |
| @12,538円 | @0円 | 10ヶ月 |
2F-5F
|
|
|
|

- 2F-5F
| 建築・設備概要 | |
|---|---|
| 所在地 | 福岡市南区大橋1-2-15 【地図はこちら】 |
| アクセス | 西鉄大牟田線:大橋駅より徒歩約1分 |
| 構造 | S造 地上5階建 |
| 竣工年月 | R7.12完成(2025年) |
| EV | 乗 用:11人乗り 2基 |
| 駐車場 | --- 無し --- |
| 駐車料金 | ---------- |
| 備考 | 大橋駅東口:ローターリーそば・令和7年12月完成 |
|---|---|
| 1フロア:1社タイプの商業店舗ビル | |
| 各階内装:スケルトン渡し | |
| 定期借家契約20年(再契約可)・保証会社加入必要 |
| 階数面積 | 4階 111.66坪(369.12㎡) | |
|---|---|---|
| 賃料 | 総額 | 1,400,000円 (坪単価 @12,538円) |
| 共益費 | 総額 | 0円 (坪単価 @0円) |
| 敷金 | 総額 | 14,000,000円 (10ヶ月) |
| 家賃総額 | 1,400,000円 (税込:1,540,000円) | |
〒812-0011 福岡市博多区博多駅前3丁目25番24号 八百治ビル8階 Phone 092-431-6300

福岡の賃貸事務所・賃貸オフィスの不動産会社
【オフィスバンク株式会社】
〒812-0011
福岡県福岡市博多区博多駅前3丁目25番24号八百治ビル8階
Phone 092-431-6300
登録許可 / 福岡県知事(4)第15838号 全国宅地建物取引業保証協会会員
福岡県宅地建物取引業協会会員 福岡商工会議所会員


















