ビルNo:10023
ユナイト博多ビル
筑紫通り沿い・ヨドバシカメラビルそばのオフィスビル

| 建築・設備概要 | |
| 所在地 | 福岡市博多区博多駅東2-6-28 |
| アクセス1 | JR博多駅より徒歩約6分 |
| アクセス2 | 西鉄バス:駅東2丁目停より徒歩約2分 |
| 構造 | SRC造 地上10階建 |
| 竣工年月 | S56.2完成(1981年) |
| エレベーター | 乗 用:9人乗り 2基 |
| 空調システム | 個別空調 |
| 駐車場 | 立体駐車場 32台 |
| 駐車料金 | 駐車場1台:27,000円(税別) 敷金:3ケ月 |
| 付属設備 |
|
| 備考 | 筑紫通り沿い・ヨドバシカメラそば |
| オフィスビル:各階内装:事務所仕上げ | |
| 保証会社加入必要・テナント総合保険加入必要 | |
| 階数 | 面積 | 賃料(総額) | 共益費(総額) | 敷金(総額) | 家賃総額 |
| (坪単価) | (坪単価) | (ヶ月) | |||
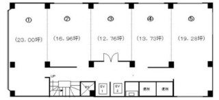
| 3 | 12.75坪(42.15㎡) | 140,250円 | 38,250円 | 1,402,500円 |
178,500円
[税込:196,350円] |
| @11,000円 | @3,000円 | 10ヶ月 |
3F-10F
|
|
1F:エントランスホール
|

- 3F-10F
- 1F:エントランスホール
| ビルNo | 10023 |
|---|---|
| ビル名 | ユナイト博多ビル |
| 所在地 | 福岡市博多区博多駅東2-6-28 【地図はこちら】 |
| アクセス | JR博多駅より徒歩約6分 |
| アクセス2 | 西鉄バス:駅東2丁目停より徒歩約2分 |
| 階数面積 | 3階 12.75坪(42.15㎡) | |
|---|---|---|
| 賃料 | 総額 | 140,250円 (坪単価 @11,000円) |
| 共益費 | 総額 | 38,250円 (坪単価 @3,000円) |
| 敷金 | 総額 | 1,402,500円 (10ヶ月) |
| 家賃総額 | 178,500円 (税込:196,350円) | |
| 付属設備 |
|
|---|
| 駐車場 | 立体駐車場 32台 |
|---|---|
| 駐車料金 | 駐車場1台:27,000円(税別) 敷金:3ケ月 |
| 備考 | 筑紫通り沿い・ヨドバシカメラそば |
|---|---|
| オフィスビル:各階内装:事務所仕上げ | |
| 保証会社加入必要・テナント総合保険加入必要 |
| 構造 | SRC造 地上10階建 |
|---|---|
| 竣工年月 | S56.2完成(1981年) |
| EV | 乗 用:9人乗り 2基 |
| 空調システム | 個別空調 |
〒812-0011 福岡市博多区博多駅前3丁目25番24号 八百治ビル8階 Phone 092-431-6300

福岡の賃貸事務所・賃貸オフィスの不動産会社
【オフィスバンク株式会社】
〒812-0011
福岡県福岡市博多区博多駅前3丁目25番24号八百治ビル8階
Phone 092-431-6300
登録許可 / 福岡県知事(4)第15838号 全国宅地建物取引業保証協会会員
福岡県宅地建物取引業協会会員 福岡商工会議所会員


















