ビルNo:14136
シンヤビル
筑紫通り近し・自社ビルタイプ2階建・駐車場8台付

| 建築・設備概要 | |
| 所在地 | 福岡市博多区比恵町18-23 |
| アクセス1 | 西鉄バス:瑞穂停:徒歩約2分 |
| アクセス2 | JR博多駅より徒歩約14分 |
| 構造 | SRC造 地上2階建 |
| 竣工年月 | S57.3完成(1982年) |
| エレベーター | --- 無し --- |
| 空調システム | 個別空調 |
| 駐車場 | 平面駐車場 2台 平面駐車場 6台 |
| 駐車料金 | 駐車場8台付 家賃に含む |
| 付属設備 | |
| 備考 | 筑紫通り近し・自社ビルタイプ2階建 |
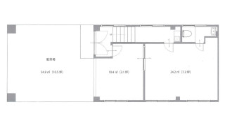
| 1階:12坪(事務所+倉庫)2階:29坪(事務所) | |
| 1階(トイレ・流し台有)・2階(トイレ・流し台有) | |
| 駐車場8台付・内6台は3ケ月後使用になる |
| 階数 | 面積 | 賃料(総額) | 共益費(総額) | 敷金(総額) | 家賃総額 |
| (坪単価) | (坪単価) | (ヶ月) | |||
| 現在、この物件には空室はありません | |||||
1F
|
|
2F
|

- 1F
- 2F
| ビルNo | 14136 |
|---|---|
| ビル名 | シンヤビル |
| 所在地 | 福岡市博多区比恵町18-23 【地図はこちら】 |
| アクセス | 西鉄バス:瑞穂停:徒歩約2分 |
| アクセス2 | JR博多駅より徒歩約14分 |
| 現在、この物件には空室はありません |
| 付属設備 |
|---|
| 駐車場 | 平面駐車場 2台 平面駐車場 6台 |
|---|---|
| 駐車料金 | 駐車場8台付 家賃に含む |
| 備考 | 筑紫通り近し・自社ビルタイプ2階建 |
|---|---|
| 1階:12坪(事務所+倉庫)2階:29坪(事務所) | |
| 1階(トイレ・流し台有)・2階(トイレ・流し台有) | |
| 駐車場8台付・内6台は3ケ月後使用になる |
| 構造 | SRC造 地上2階建 |
|---|---|
| 竣工年月 | S57.3完成(1982年) |
| EV | --- 無し --- |
| 空調システム | 個別空調 |
〒812-0011 福岡市博多区博多駅前3丁目25番24号 八百治ビル8階 Phone 092-431-6300

福岡の賃貸事務所・賃貸オフィスの不動産会社
【オフィスバンク株式会社】
〒812-0011
福岡県福岡市博多区博多駅前3丁目25番24号八百治ビル8階
Phone 092-431-6300
登録許可 / 福岡県知事(4)第15838号 全国宅地建物取引業保証協会会員
福岡県宅地建物取引業協会会員 福岡商工会議所会員


















