ビルNo:23110
ステイツ六本松
城南線沿い・エディオン六本松店そば・1階店舗・内装:事務所仕上げ

| 建築・設備概要 | |
| 所在地 | 福岡市中央区草香江2-6-14 |
| アクセス1 | 西鉄バス草香江停より徒歩約1分 |
| アクセス2 | 地下鉄七隈線:六本松より徒歩約6分 |
| 構造 | RC造 地上7階建 |
| 竣工年月 | H1.8完成(1989年) |
| エレベーター | 乗 用:9人乗り 1基 |
| 空調システム | 個別空調 |
| 駐車場 | --- 無し --- |
| 駐車料金 | ---------- |
| 付属設備 | |
| 備考 | 城南線沿い・エディオン六本松店そば |
| 1階内装:事務所仕上げ | |
| 1階:貸室内:空調・ミニキッチン・トイレ付 | |
| 定期借家契約2年(再契約相談可)・保証会社加入必要 |
| 階数 | 面積 | 賃料(総額) | 共益費(総額) | 敷金(総額) | 家賃総額 |
| (坪単価) | (坪単価) | (ヶ月) | |||
| 1 | 12.36坪(40.86㎡) | 153,040円 | 20,000円 | 765,200円 |
173,040円
[税込:190,344円] |
| @12,382円 | @1,618円 | 5ヶ月 |
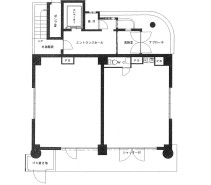
1F
|
|
1F:12.35坪
|

- 1F
- 1F:12.35坪
| ビルNo | 23110 |
|---|---|
| ビル名 | ステイツ六本松 |
| 所在地 | 福岡市中央区草香江2-6-14 【地図はこちら】 |
| アクセス | 西鉄バス草香江停より徒歩約1分 |
| アクセス2 | 地下鉄七隈線:六本松より徒歩約6分 |
| 階数面積 | 1階 12.36坪(40.86㎡) | |
|---|---|---|
| 賃料 | 総額 | 153,040円 (坪単価 @12,382円) |
| 共益費 | 総額 | 20,000円 (坪単価 @1,618円) |
| 敷金 | 総額 | 765,200円 (5ヶ月) |
| 家賃総額 | 173,040円 (税込:190,344円) | |
| 付属設備 |
|---|
| 駐車場 | --- 無し --- |
|---|---|
| 駐車料金 | ---------- |
| 備考 | 城南線沿い・エディオン六本松店そば |
|---|---|
| 1階内装:事務所仕上げ | |
| 1階:貸室内:空調・ミニキッチン・トイレ付 | |
| 定期借家契約2年(再契約相談可)・保証会社加入必要 |
| 構造 | RC造 地上7階建 |
|---|---|
| 竣工年月 | H1.8完成(1989年) |
| EV | 乗 用:9人乗り 1基 |
| 空調システム | 個別空調 |
〒812-0011 福岡市博多区博多駅前3丁目25番24号 八百治ビル8階 Phone 092-431-6300

福岡の賃貸事務所・賃貸オフィスの不動産会社
【オフィスバンク株式会社】
〒812-0011
福岡県福岡市博多区博多駅前3丁目25番24号八百治ビル8階
Phone 092-431-6300
登録許可 / 福岡県知事(4)第15838号 全国宅地建物取引業保証協会会員
福岡県宅地建物取引業協会会員 福岡商工会議所会員


















