ビルNo:25044
天神アイエスビル
国体通り沿い・福岡三越ビルそばの商業オフィスビル

| 建築・設備概要 | |
| 所在地 | 福岡市中央区天神2-3-2 |
| アクセス1 | 地下鉄天神昇降口:徒歩約5分 |
| アクセス2 | 西鉄バス:警固神社前:徒歩約1分 |
| 構造 | SRC造 地上9階建 |
| 竣工年月 | H11.8完成(1999年) |
| エレベーター | 乗 用:11人乗り 2基 |
| 空調システム | 個別空調 |
| 駐車場 | 立体駐車場 36台 |
| 駐車料金 | 確認中 |
| 付属設備 |
|
| 備考 | 国体道路沿い・福岡三越ビルそば |
| 商業オフィスビル | |
| 各階内装:事務所仕上げ・OA・天井高:2.55m | |
| 保証会社加入必要・テナント総合保険加入必要 |
| 階数 | 面積 | 賃料(総額) | 共益費(総額) | 敷金(総額) | 家賃総額 |
| (坪単価) | (坪単価) | (ヶ月) | |||
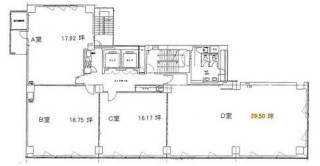
| 3 | 34.95坪(115.54㎡) | 699,000円 | 0円 | 8,388,000円 |
699,000円
[税込:768,900円] |
| @20,000円 | @0円 | 12ヶ月 |
3F-9F
|
|
1F:エレベーターホール
|

- 3F-9F
- 1F:エレベーターホール
| ビルNo | 25044 |
|---|---|
| ビル名 | 天神アイエスビル |
| 所在地 | 福岡市中央区天神2-3-2 【地図はこちら】 |
| アクセス | 地下鉄天神昇降口:徒歩約5分 |
| アクセス2 | 西鉄バス:警固神社前:徒歩約1分 |
| 階数面積 | 3階 34.95坪(115.54㎡) | |
|---|---|---|
| 賃料 | 総額 | 699,000円 (坪単価 @20,000円) |
| 共益費 | 総額 | 0円 (坪単価 @0円) |
| 敷金 | 総額 | 8,388,000円 (12ヶ月) |
| 家賃総額 | 699,000円 (税込:768,900円) | |
| 付属設備 |
|
|---|
| 駐車場 | 立体駐車場 36台 |
|---|---|
| 駐車料金 | 確認中 |
| 備考 | 国体道路沿い・福岡三越ビルそば |
|---|---|
| 商業オフィスビル | |
| 各階内装:事務所仕上げ・OA・天井高:2.55m | |
| 保証会社加入必要・テナント総合保険加入必要 |
| 構造 | SRC造 地上9階建 |
|---|---|
| 竣工年月 | H11.8完成(1999年) |
| EV | 乗 用:11人乗り 2基 |
| 空調システム | 個別空調 |
〒812-0011 福岡市博多区博多駅前3丁目25番24号 八百治ビル8階 Phone 092-431-6300

福岡の賃貸事務所・賃貸オフィスの不動産会社
【オフィスバンク株式会社】
〒812-0011
福岡県福岡市博多区博多駅前3丁目25番24号八百治ビル8階
Phone 092-431-6300
登録許可 / 福岡県知事(4)第15838号 全国宅地建物取引業保証協会会員
福岡県宅地建物取引業協会会員 福岡商工会議所会員


















