ビルNo:60211
ニシコービル横手
香蘭女子短期大学そば・商業店舗ビル1階+2階(セット貸し)・駐車場25台付

| 建築・設備概要 | |
| 所在地 | 福岡市南区横手1-7-1 |
| アクセス1 | 西鉄バス:横手1丁目より徒歩約3分 |
| アクセス2 | JR井尻駅より徒歩約13分 |
| 構造 | RC造 地上3階建 |
| 竣工年月 | H3.9完成(1991年) |
| エレベーター | --- 無し --- |
| 空調システム | 全館集中型+個別空調 |
| 駐車場 | 平面駐車場 25台 |
| 駐車料金 | 駐車場25台付 家賃に含む |
| 付属設備 | |
| 備考 | 香蘭女子短期大学そば・商業店舗ビル |
| 1階約145坪+2階約164坪・フィットネスジム跡 | |
| サウナ・シャワールーム有・現状渡し(相談) | |
| 敷地内駐車場25台付・定期借家契約10年 |
| 階数 | 面積 | 賃料(総額) | 共益費(総額) | 敷金(総額) | 家賃総額 |
| (坪単価) | (坪単価) | (ヶ月) | |||
| 1 | 309.98坪(1,024.73㎡) | 2,944,000円 | 0円 | 17,664,000円 |
2,944,000円
[税込:3,238,400円] |
| @9,497円 | @0円 | 6ヶ月 |
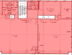
1F:149.49坪
|
|
2F:164.49坪
|

- 1F:149.49坪
- 2F:164.49坪
| ビルNo | 60211 |
|---|---|
| ビル名 | ニシコービル横手 |
| 所在地 | 福岡市南区横手1-7-1 【地図はこちら】 |
| アクセス | 西鉄バス:横手1丁目より徒歩約3分 |
| アクセス2 | JR井尻駅より徒歩約13分 |
| 階数面積 | 1階 309.98坪(1,024.73㎡) | |
|---|---|---|
| 賃料 | 総額 | 2,944,000円 (坪単価 @9,497円) |
| 共益費 | 総額 | 0円 (坪単価 @0円) |
| 敷金 | 総額 | 17,664,000円 (6ヶ月) |
| 家賃総額 | 2,944,000円 (税込:3,238,400円) | |
| 付属設備 |
|---|
| 駐車場 | 平面駐車場 25台 |
|---|---|
| 駐車料金 | 駐車場25台付 家賃に含む |
| 備考 | 香蘭女子短期大学そば・商業店舗ビル |
|---|---|
| 1階約145坪+2階約164坪・フィットネスジム跡 | |
| サウナ・シャワールーム有・現状渡し(相談) | |
| 敷地内駐車場25台付・定期借家契約10年 |
| 構造 | RC造 地上3階建 |
|---|---|
| 竣工年月 | H3.9完成(1991年) |
| EV | --- 無し --- |
| 空調システム | 全館集中型+個別空調 |
〒812-0011 福岡市博多区博多駅前3丁目25番24号 八百治ビル8階 Phone 092-431-6300

福岡の賃貸事務所・賃貸オフィスの不動産会社
【オフィスバンク株式会社】
〒812-0011
福岡県福岡市博多区博多駅前3丁目25番24号八百治ビル8階
Phone 092-431-6300
登録許可 / 福岡県知事(4)第15838号 全国宅地建物取引業保証協会会員
福岡県宅地建物取引業協会会員 福岡商工会議所会員


















