ビルNo:22053
紙与渡辺ビル
天神大通り交差点角地・大型オフィスビル

| 建築・設備概要 | |
| 所在地 | 福岡市中央区天神1-12-14 |
| アクセス1 | 地下鉄天神昇降口:徒歩約1分 |
| アクセス2 | 西鉄バス:中央郵便局前停より徒歩約1分 |
| 構造 | SRC造 地下1階地上10階建 |
| 竣工年月 | H12.3完成(2000年) |
| エレベーター | 乗 用:15人乗り 2基 荷搬用:1基 |
| 空調システム | 全館集中型+個別空調 |
| 駐車場 | 立体駐車場 34台 |
| 駐車料金 | 駐車場1台:38,000円(税別) 敷金:3ケ月 |
| 付属設備 |
|
| 備考 | 天神大通り交差点角地・大型オフィスビル |
| 各階内装:事務所仕上げ・OAフロア・天井高2.7m | |
| 空調:ビル指定時間内共益費に含む | |
| 大型荷搬用EV:1基装備・床荷重:㎡/500kg |
| 階数 | 面積 | 賃料(総額) | 共益費(総額) | 敷金(総額) | 家賃総額 |
| (坪単価) | (坪単価) | (ヶ月) | |||
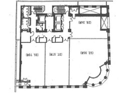
| 2 | 155.59坪(514.35㎡) | 3,889,750円 | 0円 | 46,677,000円 |
3,889,750円
[税込:4,278,725円] |
| @25,000円 | @0円 | 12ヶ月 |
2F
|
|
貸室イメージ
|

- 2F
- 貸室イメージ
| ビルNo | 22053 |
|---|---|
| ビル名 | 紙与渡辺ビル |
| 所在地 | 福岡市中央区天神1-12-14 【地図はこちら】 |
| アクセス | 地下鉄天神昇降口:徒歩約1分 |
| アクセス2 | 西鉄バス:中央郵便局前停より徒歩約1分 |
| 階数面積 | 2階 155.59坪(514.35㎡) | |
|---|---|---|
| 賃料 | 総額 | 3,889,750円 (坪単価 @25,000円) |
| 共益費 | 総額 | 0円 (坪単価 @0円) |
| 敷金 | 総額 | 46,677,000円 (12ヶ月) |
| 家賃総額 | 3,889,750円 (税込:4,278,725円) | |
| 付属設備 |
|
|---|
| 駐車場 | 立体駐車場 34台 |
|---|---|
| 駐車料金 | 駐車場1台:38,000円(税別) 敷金:3ケ月 |
| 備考 | 天神大通り交差点角地・大型オフィスビル |
|---|---|
| 各階内装:事務所仕上げ・OAフロア・天井高2.7m | |
| 空調:ビル指定時間内共益費に含む | |
| 大型荷搬用EV:1基装備・床荷重:㎡/500kg |
| 構造 | SRC造 地下1階地上10階建 |
|---|---|
| 竣工年月 | H12.3完成(2000年) |
| EV | 乗 用:15人乗り 2基 荷搬用:1基 |
| 空調システム | 全館集中型+個別空調 |
〒812-0011 福岡市博多区博多駅前3丁目25番24号 八百治ビル8階 Phone 092-431-6300

福岡の賃貸事務所・賃貸オフィスの不動産会社
【オフィスバンク株式会社】
〒812-0011
福岡県福岡市博多区博多駅前3丁目25番24号八百治ビル8階
Phone 092-431-6300
登録許可 / 福岡県知事(4)第15838号 全国宅地建物取引業保証協会会員
福岡県宅地建物取引業協会会員 福岡商工会議所会員


















