ビルNo:11062
博多駅前H-44ビル
駅前4丁目交差点角地の大型オフィスビル

| 建築・設備概要 | |
| 所在地 | 福岡市博多区博多駅前4-4-15 |
| アクセス1 | JR博多駅より徒歩約9分 |
| アクセス2 | 西鉄バス:駅前4丁目:徒歩約3分 |
| 構造 | SRC造地下1階 地上9階建 |
| 竣工年月 | S59.7完成(1984年) |
| エレベーター | 乗 用:17人乗り 2基 |
| 空調システム | 個別空調 |
| 駐車場 | 立体駐車場 34台 |
| 駐車料金 | 駐車場1台:25,000円(税別) 敷金:3ケ月 |
| 付属設備 |
|
| 備考 | 駅前4丁目交差点角地の大型オフィスビル |
| 各階内装:事務所仕上げ・OAフロア・天井高2.6m | |
| 大型エレベーター1基(30人乗り)装備 | |
| 階数 | 面積 | 賃料(総額) | 共益費(総額) | 敷金(総額) | 家賃総額 |
| (坪単価) | (坪単価) | (ヶ月) | |||
| 9 | 239.87坪(792.96㎡) | 3,598,050円 | 0円 | 43,176,600円 |
3,598,050円
[税込:3,957,855円] |
| @15,000円 | @0円 | 12ヶ月 |
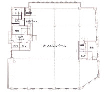
5F-9F
|
|
貸室イメージ
|

- 5F-9F
- 貸室イメージ
| ビルNo | 11062 |
|---|---|
| ビル名 | 博多駅前H-44ビル |
| 所在地 | 福岡市博多区博多駅前4-4-15 【地図はこちら】 |
| アクセス | JR博多駅より徒歩約9分 |
| アクセス2 | 西鉄バス:駅前4丁目:徒歩約3分 |
| 階数面積 | 9階 239.87坪(792.96㎡) | |
|---|---|---|
| 賃料 | 総額 | 3,598,050円 (坪単価 @15,000円) |
| 共益費 | 総額 | 0円 (坪単価 @0円) |
| 敷金 | 総額 | 43,176,600円 (12ヶ月) |
| 家賃総額 | 3,598,050円 (税込:3,957,855円) | |
| 付属設備 |
|
|---|
| 駐車場 | 立体駐車場 34台 |
|---|---|
| 駐車料金 | 駐車場1台:25,000円(税別) 敷金:3ケ月 |
| 備考 | 駅前4丁目交差点角地の大型オフィスビル |
|---|---|
| 各階内装:事務所仕上げ・OAフロア・天井高2.6m | |
| 大型エレベーター1基(30人乗り)装備 |
| 構造 | SRC造地下1階 地上9階建 |
|---|---|
| 竣工年月 | S59.7完成(1984年) |
| EV | 乗 用:17人乗り 2基 |
| 空調システム | 個別空調 |
〒812-0011 福岡市博多区博多駅前3丁目25番24号 八百治ビル8階 Phone 092-431-6300

福岡の賃貸事務所・賃貸オフィスの不動産会社
【オフィスバンク株式会社】
〒812-0011
福岡県福岡市博多区博多駅前3丁目25番24号八百治ビル8階
Phone 092-431-6300
登録許可 / 福岡県知事(4)第15838号 全国宅地建物取引業保証協会会員
福岡県宅地建物取引業協会会員 福岡商工会議所会員


















