ビルNo:22096
KG天神ビル
那の津通り沿い・KBCビル斜め前・大型オフィスビル

| 建築・設備概要 | |
| 所在地 | 福岡市中央区天神3-9-33 |
| アクセス1 | 地下鉄天神昇降口:徒歩約9分 |
| アクセス2 | 西鉄バス:那の津口:徒歩約3分 |
| 構造 | SRC造 地上7階建 |
| 竣工年月 | H15.4完成(2003年) |
| エレベーター | 乗 用:11人乗り 2基 |
| 空調システム | 個別空調 |
| 駐車場 | 立体駐車場 30台 |
| 駐車料金 | 駐車場1台:25,000円(税別) 敷金:3ケ月 |
| 付属設備 |
|
| 備考 | 那の津通り沿い・KBCビル斜め前・大型オフィスビル |
| 各階内装:事務所仕上げ・OAフロア | |
| 床荷重:500kg/㎡対応・天井高:2700㎜ | |
| 身障者用:(駐車場・トイレ)完備 |
| 階数 | 面積 | 賃料(総額) | 共益費(総額) | 敷金(総額) | 家賃総額 |
| (坪単価) | (坪単価) | (ヶ月) | |||
| 2 | 51.33坪(169.69㎡) | 641,625円 | 128,325円 | 7,699,500円 |
769,950円
[税込:846,945円] |
| @12,500円 | @2,500円 | 12ヶ月 |
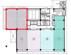
2F:51.33坪
|
|
1F:エレベーターホール
|

- 2F:51.33坪
- 1F:エレベーターホール
| ビルNo | 22096 |
|---|---|
| ビル名 | KG天神ビル |
| 所在地 | 福岡市中央区天神3-9-33 【地図はこちら】 |
| アクセス | 地下鉄天神昇降口:徒歩約9分 |
| アクセス2 | 西鉄バス:那の津口:徒歩約3分 |
| 階数面積 | 2階 51.33坪(169.69㎡) | |
|---|---|---|
| 賃料 | 総額 | 641,625円 (坪単価 @12,500円) |
| 共益費 | 総額 | 128,325円 (坪単価 @2,500円) |
| 敷金 | 総額 | 7,699,500円 (12ヶ月) |
| 家賃総額 | 769,950円 (税込:846,945円) | |
| 付属設備 |
|
|---|
| 駐車場 | 立体駐車場 30台 |
|---|---|
| 駐車料金 | 駐車場1台:25,000円(税別) 敷金:3ケ月 |
| 備考 | 那の津通り沿い・KBCビル斜め前・大型オフィスビル |
|---|---|
| 各階内装:事務所仕上げ・OAフロア | |
| 床荷重:500kg/㎡対応・天井高:2700㎜ | |
| 身障者用:(駐車場・トイレ)完備 |
| 構造 | SRC造 地上7階建 |
|---|---|
| 竣工年月 | H15.4完成(2003年) |
| EV | 乗 用:11人乗り 2基 |
| 空調システム | 個別空調 |
〒812-0011 福岡市博多区博多駅前3丁目25番24号 八百治ビル8階 Phone 092-431-6300

福岡の賃貸事務所・賃貸オフィスの不動産会社
【オフィスバンク株式会社】
〒812-0011
福岡県福岡市博多区博多駅前3丁目25番24号八百治ビル8階
Phone 092-431-6300
登録許可 / 福岡県知事(4)第15838号 全国宅地建物取引業保証協会会員
福岡県宅地建物取引業協会会員 福岡商工会議所会員


















