ビルNo:25107
天神プライム
西鉄グランドホテル前・天神西通り沿いの大型商業オフィスビル

| 建築・設備概要 | |
| 所在地 | 福岡市中央区天神2-7-21 |
| アクセス1 | 地下鉄天神昇降口:徒歩約3分 |
| アクセス2 | 西鉄バス:天神協和ビル前停より徒歩約2分 |
| 構造 | SRC造 地下1階 地上12階建 |
| 竣工年月 | H20.10完成(2008年) |
| エレベーター | 乗 用:13人乗り 4基 荷搬用:2基 |
| 空調システム | 個別空調 |
| 駐車場 | --- 無し --- |
| 駐車料金 | ---------- |
| 付属設備 |
|
| 備考 | 天神西通り沿いの大型商業オフィスビル |
| 5階-12階:事務所フロア・OA・天井高:2.7m | |
| 大型荷搬用EV:2基装備・床荷重500kg/㎡ | |
| 定期借家契約3年(再契約可)・保証会社加入必要 |
| 階数 | 面積 | 賃料(総額) | 共益費(総額) | 敷金(総額) | 家賃総額 |
| (坪単価) | (坪単価) | (ヶ月) | |||
| 10 | 93.98坪(310.68㎡) | 1,785,620円 | 0円 | 21,427,440円 |
1,785,620円
[税込:1,964,182円] |
| @19,000円 | @0円 | 12ヶ月 |
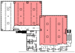
10F:93.98坪
|
|
1F:エレベーターホール
|

- 10F:93.98坪
- 1F:エレベーターホール
| ビルNo | 25107 |
|---|---|
| ビル名 | 天神プライム |
| 所在地 | 福岡市中央区天神2-7-21 【地図はこちら】 |
| アクセス | 地下鉄天神昇降口:徒歩約3分 |
| アクセス2 | 西鉄バス:天神協和ビル前停より徒歩約2分 |
| 階数面積 | 10階 93.98坪(310.68㎡) | |
|---|---|---|
| 賃料 | 総額 | 1,785,620円 (坪単価 @19,000円) |
| 共益費 | 総額 | 0円 (坪単価 @0円) |
| 敷金 | 総額 | 21,427,440円 (12ヶ月) |
| 家賃総額 | 1,785,620円 (税込:1,964,182円) | |
| 付属設備 |
|
|---|
| 駐車場 | --- 無し --- |
|---|---|
| 駐車料金 | ---------- |
| 備考 | 天神西通り沿いの大型商業オフィスビル |
|---|---|
| 5階-12階:事務所フロア・OA・天井高:2.7m | |
| 大型荷搬用EV:2基装備・床荷重500kg/㎡ | |
| 定期借家契約3年(再契約可)・保証会社加入必要 |
| 構造 | SRC造 地下1階 地上12階建 |
|---|---|
| 竣工年月 | H20.10完成(2008年) |
| EV | 乗 用:13人乗り 4基 荷搬用:2基 |
| 空調システム | 個別空調 |
〒812-0011 福岡市博多区博多駅前3丁目25番24号 八百治ビル8階 Phone 092-431-6300

福岡の賃貸事務所・賃貸オフィスの不動産会社
【オフィスバンク株式会社】
〒812-0011
福岡県福岡市博多区博多駅前3丁目25番24号八百治ビル8階
Phone 092-431-6300
登録許可 / 福岡県知事(4)第15838号 全国宅地建物取引業保証協会会員
福岡県宅地建物取引業協会会員 福岡商工会議所会員


















