国体通り沿い・ダイワロイネットホテル横の商業店舗ビル
西中洲店舗ビル (仮称)
ビルNo:26237

| 建築・設備概要 | |
| 所在地 | 福岡市中央区西中洲1-11 |
| アクセス | 地下鉄天神昇降口より徒歩約6分 西鉄バス:春吉停より徒歩約2分 |
| 構造 | RC造 地上6階建 |
| 竣工年月 | H16.10完成(2004年) |
| エレベーター | 乗 用:9人乗り 1基 |
| 駐車場 | --- 無し --- |
| 駐車料金 | ---------- |
| 入居可能日 | |
| 備考 | 国体通り沿い・ダイワロイネットホテル横 |
| 1フロア:テナントタイプの商業店舗ビル | |
| 各階内装:スケルトン渡し (分割可) | |
| 定期借家契約(年数相談)・保証会社加入必要 |
| 階数 | 面積 | 賃料(総額) | 共益費(総額) | 敷金(総額) | 家賃総額 |
| (坪単価) | (坪単価) | (ヶ月) | |||
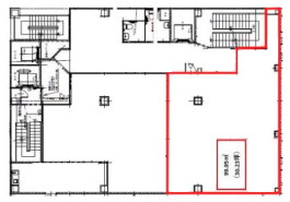
| 3 | 30 .23 坪(99.93㎡) | 400,000円 | 0円 | 2,400,000円 |
400,000円
[税込:440,000円] |
| @13,232円 | @0円 | 6ヶ月 |
3F:30.23坪
|
|
3F:30.23坪
|

- 3F:30.23坪
- 3F:30.23坪
| 建築・設備概要 | |
|---|---|
| 所在地 | 福岡市中央区西中洲1-11 【地図はこちら】 |
| アクセス | 地下鉄天神昇降口より徒歩約6分 |
| アクセス2 | 西鉄バス:春吉停より徒歩約2分 |
| 構造 | RC造 地上6階建 |
| 竣工年月 | H16.10完成(2004年) |
| EV | 乗 用:9人乗り 1基 |
| 駐車場 | --- 無し --- |
| 駐車料金 | ---------- |
| 備考 | 国体通り沿い・ダイワロイネットホテル横 |
|---|---|
| 1フロア:テナントタイプの商業店舗ビル | |
| 各階内装:スケルトン渡し (分割可) | |
| 定期借家契約(年数相談)・保証会社加入必要 |
| 階数面積 | 3階 30.23坪(99.93㎡) | |
|---|---|---|
| 賃料 | 総額 | 400,000円 (坪単価 @13,232円) |
| 共益費 | 総額 | 0円 (坪単価 @0円) |
| 敷金 | 総額 | 2,400,000円 (6ヶ月) |
| 家賃総額 | 400,000円 (税込:440,000円) | |
〒812-0011 福岡市博多区博多駅前3丁目25番24号 八百治ビル8階 Phone 092-431-6300

福岡の賃貸事務所・賃貸オフィスの不動産会社
【オフィスバンク株式会社】
〒812-0011
福岡県福岡市博多区博多駅前3丁目25番24号八百治ビル8階
Phone 092-431-6300
登録許可 / 福岡県知事(4)第15838号 全国宅地建物取引業保証協会会員
福岡県宅地建物取引業協会会員 福岡商工会議所会員


















