国体道路そば・商業店舗ビル
プロスぺリタ今泉Ⅲ
ビルNo:28096

| 建築・設備概要 | |
| 所在地 | 福岡市中央区今泉1-17-16 |
| アクセス | 地下鉄天神昇降口より徒歩約4分 西鉄バス:天神護国神社前より徒歩約3分 |
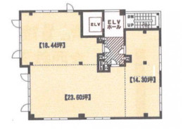
| 構造 | RC造 地上5階建 |
| 竣工年月 | H28.8完成(2016年) |
| エレベーター | 乗 用:13人乗り 1基 |
| 駐車場 | --- 無し --- |
| 駐車料金 | ---------- |
| 入居可能日 | |
| 備考 | 国体道路そばの商業店舗ビル |
| 各階内装:原則スケルトン渡し・天井高:3.5m | |
| 看板使用料:月/15,000円(税別)必要 | |
| 機械警備有:月額10,000円(税別)必要 |
| 階数 | 面積 | 賃料(総額) | 共益費(総額) | 敷金(総額) | 家賃総額 |
| (坪単価) | (坪単価) | (ヶ月) | |||
| 現在、この物件には空室はありません | |||||
|
|
|
|
|

| 建築・設備概要 | |
|---|---|
| 所在地 | 福岡市中央区今泉1-17-16 【地図はこちら】 |
| アクセス | 地下鉄天神昇降口より徒歩約4分 |
| アクセス2 | 西鉄バス:天神護国神社前より徒歩約3分 |
| 構造 | RC造 地上5階建 |
| 竣工年月 | H28.8完成(2016年) |
| EV | 乗 用:13人乗り 1基 |
| 駐車場 | --- 無し --- |
| 駐車料金 | ---------- |
| 備考 | 国体道路そばの商業店舗ビル |
|---|---|
| 各階内装:原則スケルトン渡し・天井高:3.5m | |
| 看板使用料:月/15,000円(税別)必要 | |
| 機械警備有:月額10,000円(税別)必要 |
| 現在、この物件には空室はありません |
〒812-0011 福岡市博多区博多駅前3丁目25番24号 八百治ビル8階 Phone 092-431-6300

福岡の賃貸事務所・賃貸オフィスの不動産会社
【オフィスバンク株式会社】
〒812-0011
福岡県福岡市博多区博多駅前3丁目25番24号八百治ビル8階
Phone 092-431-6300
登録許可 / 福岡県知事(4)第15838号 全国宅地建物取引業保証協会会員
福岡県宅地建物取引業協会会員 福岡商工会議所会員


















