養巴町通り沿い・商業店舗事務所ビル・令和2年6月完成
DAIMYO582
ビルNo:24010

| 建築・設備概要 | |
| 所在地 | 福岡市中央区大名1-3-29 |
| アクセス | 地下鉄赤坂昇降口より徒歩約6分 地下鉄天神昇降口より徒歩約11分 |
| 構造 | RC造 地上7階建 |
| 竣工年月 | R2.6完成(2020年) |
| エレベーター | 乗 用:9人乗り 1基 |
| 駐車場 | --- 無し --- |
| 駐車料金 | ---------- |
| 入居可能日 | 引合有 |
| 備考 | 養巴町通り沿い・令和2年6月完成 |
| 1フロア1社タイプの商業店舗事務所ビル | |
| 各階内装:スケルトン渡しor半事務所仕様 | |
| 看板掲載料:月額1万円・機械警備:月額6千円必要 |
| 階数 | 面積 | 賃料(総額) | 共益費(総額) | 敷金(総額) | 家賃総額 |
| (坪単価) | (坪単価) | (ヶ月) | |||
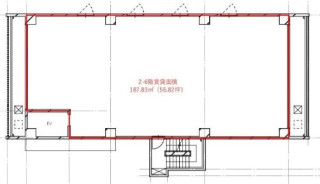
| 6 | 56 .82 坪(187.83㎡) | 965,940円 | 0円 | 2,897,820円 |
965,940円
[税込:1,062,534円] |
| @17,000円 | @0円 | 3ヶ月 |
2F-7F
|
|
6F:56坪
|

- 2F-7F
- 6F:56坪
| 建築・設備概要 | |
|---|---|
| 所在地 | 福岡市中央区大名1-3-29 【地図はこちら】 |
| アクセス | 地下鉄赤坂昇降口より徒歩約6分 |
| アクセス2 | 地下鉄天神昇降口より徒歩約11分 |
| 構造 | RC造 地上7階建 |
| 竣工年月 | R2.6完成(2020年) |
| EV | 乗 用:9人乗り 1基 |
| 駐車場 | --- 無し --- |
| 駐車料金 | ---------- |
| 備考 | 養巴町通り沿い・令和2年6月完成 |
|---|---|
| 1フロア1社タイプの商業店舗事務所ビル | |
| 各階内装:スケルトン渡しor半事務所仕様 | |
| 看板掲載料:月額1万円・機械警備:月額6千円必要 |
| 階数面積 | 6階 56.82坪(187.83㎡) | |
|---|---|---|
| 賃料 | 総額 | 965,940円 (坪単価 @17,000円) |
| 共益費 | 総額 | 0円 (坪単価 @0円) |
| 敷金 | 総額 | 2,897,820円 (3ヶ月) |
| 家賃総額 | 965,940円 (税込:1,062,534円) | |
〒812-0011 福岡市博多区博多駅前3丁目25番24号 八百治ビル8階 Phone 092-431-6300

福岡の賃貸事務所・賃貸オフィスの不動産会社
【オフィスバンク株式会社】
〒812-0011
福岡県福岡市博多区博多駅前3丁目25番24号八百治ビル8階
Phone 092-431-6300
登録許可 / 福岡県知事(4)第15838号 全国宅地建物取引業保証協会会員
福岡県宅地建物取引業協会会員 福岡商工会議所会員


















