薬院六つ角・ボンラパス店そば・1フロア:1社タイプの複合事務所ビル
大地ビル
ビルNo:24094

| 建築・設備概要 | |
| 所在地 | 福岡市中央区薬院2-2-18 |
| アクセス | 地下鉄:薬院大通駅:徒歩約3分 |
| 構造 | RC造 地上6階建 |
| 竣工年月 | H2.4完成(1990年) |
| エレベーター | 乗 用:9人乗り 1基 |
| 駐車場 | --- 無し --- |
| 駐車料金 | ---------- |
| 入居可能日 | |
| 備考 | 薬院六つ角・ボンラパス店そば |
| 1フロア:1社タイプの複合事務所ビル | |
| 各階内装:事務所仕様 | |
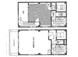
| 5階+6階:メゾネットタイプ・保証会社加入必要 |
| 階数 | 面積 | 賃料(総額) | 共益費(総額) | 敷金(総額) | 家賃総額 |
| (坪単価) | (坪単価) | (ヶ月) | |||
| 5 | 18 .21 坪(60.2㎡) | 160,000円 | 0円 | 480,000円 |
160,000円
[税込:176,000円] |
| @8,786円 | @0円 | 3ヶ月 |
5F-6F(メゾネットタイプ)
|
|
5F-6F(メゾネットタイプ)
|

- 5F-6F(メゾネットタイプ)
- 5F-6F(メゾネットタイプ)
| 建築・設備概要 | |
|---|---|
| 所在地 | 福岡市中央区薬院2-2-18 【地図はこちら】 |
| アクセス | 地下鉄:薬院大通駅:徒歩約3分 |
| 構造 | RC造 地上6階建 |
| 竣工年月 | H2.4完成(1990年) |
| EV | 乗 用:9人乗り 1基 |
| 駐車場 | --- 無し --- |
| 駐車料金 | ---------- |
| 備考 | 薬院六つ角・ボンラパス店そば |
|---|---|
| 1フロア:1社タイプの複合事務所ビル | |
| 各階内装:事務所仕様 | |
| 5階+6階:メゾネットタイプ・保証会社加入必要 |
| 階数面積 | 5階 18.21坪(60.2㎡) | |
|---|---|---|
| 賃料 | 総額 | 160,000円 (坪単価 @8,786円) |
| 共益費 | 総額 | 0円 (坪単価 @0円) |
| 敷金 | 総額 | 480,000円 (3ヶ月) |
| 家賃総額 | 160,000円 (税込:176,000円) | |
〒812-0011 福岡市博多区博多駅前3丁目25番24号 八百治ビル8階 Phone 092-431-6300

福岡の賃貸事務所・賃貸オフィスの不動産会社
【オフィスバンク株式会社】
〒812-0011
福岡県福岡市博多区博多駅前3丁目25番24号八百治ビル8階
Phone 092-431-6300
登録許可 / 福岡県知事(4)第15838号 全国宅地建物取引業保証協会会員
福岡県宅地建物取引業協会会員 福岡商工会議所会員


















