ビルNo:13083
CIRCLES中洲川端
ホテルオークラ福岡・博多リバレインそばのオフィスビル・令和6年4月完成

| 建築・設備概要 | |
| 所在地 | 福岡市博多区下川端10-9 |
| アクセス1 | 地下鉄中洲川端駅より徒歩約2分 |
| アクセス2 | |
| 構造 | S造 地上14階建 |
| 竣工年月 | R6.4完成(2024年) |
| エレベーター | 乗 用:13人乗り 2基 |
| 空調システム | 個別空調 |
| 駐車場 | 2段式駐車場 6台 平面駐車場 2台 |
| 駐車料金 | 確認中 |
| 付属設備 |
|
| 備考 | ホテルオークラ福岡・博多リバレインそば |
| 1フロア1社タイプのオフィスビル・令和6年4月完成 | |
| 各階内装:事務所仕上げ・OAフロア | |
| 天井高:梁下2.54m~スラブ下3.28m |
| 階数 | 面積 | 賃料(総額) | 共益費(総額) | 敷金(総額) | 家賃総額 |
| (坪単価) | (坪単価) | (ヶ月) | |||
| 13 | 84.29坪(278.64㎡) | 1,348,640円 | 252,870円 | 10,789,120円 |
1,601,510円
[税込:1,761,661円] |
| @16,000円 | @3,000円 | 8ヶ月 |
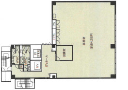
会議室付フロア
|
|
貸室イメージ
|

- 会議室付フロア
- 貸室イメージ
| ビルNo | 13083 |
|---|---|
| ビル名 | CIRCLES中洲川端 |
| 所在地 | 福岡市博多区下川端10-9 【地図はこちら】 |
| アクセス | 地下鉄中洲川端駅より徒歩約2分 |
| 階数面積 | 13階 84.29坪(278.64㎡) | |
|---|---|---|
| 賃料 | 総額 | 1,348,640円 (坪単価 @16,000円) |
| 共益費 | 総額 | 252,870円 (坪単価 @3,000円) |
| 敷金 | 総額 | 10,789,120円 (8ヶ月) |
| 家賃総額 | 1,601,510円 (税込:1,761,661円) | |
| 付属設備 |
|
|---|
| 駐車場 | 2段式駐車場 6台 平面駐車場 2台 |
|---|---|
| 駐車料金 | 確認中 |
| 備考 | ホテルオークラ福岡・博多リバレインそば |
|---|---|
| 1フロア1社タイプのオフィスビル・令和6年4月完成 | |
| 各階内装:事務所仕上げ・OAフロア | |
| 天井高:梁下2.54m~スラブ下3.28m |
| 構造 | S造 地上14階建 |
|---|---|
| 竣工年月 | R6.4完成(2024年) |
| EV | 乗 用:13人乗り 2基 |
| 空調システム | 個別空調 |
〒812-0011 福岡市博多区博多駅前3丁目25番24号 八百治ビル8階 Phone 092-431-6300

福岡の賃貸事務所・賃貸オフィスの不動産会社
【オフィスバンク株式会社】
〒812-0011
福岡県福岡市博多区博多駅前3丁目25番24号八百治ビル8階
Phone 092-431-6300
登録許可 / 福岡県知事(4)第15838号 全国宅地建物取引業保証協会会員
福岡県宅地建物取引業協会会員 福岡商工会議所会員


















