ビルNo:24004
オフィスニューガイアセレス赤坂門№19
昭和通り沿い・赤坂交差点そばのオフィスビル

| 建築・設備概要 | |
| 所在地 | 福岡市中央区舞鶴3-1-10 |
| アクセス1 | 地下鉄赤坂駅より徒歩約4分 |
| アクセス2 | 西鉄バス:法務局前より徒歩約1分 |
| 構造 | RC造 地下1階地上12階建 |
| 竣工年月 | H4.6完成(1992年) |
| エレベーター | 乗 用:9人乗り 1基 |
| 空調システム | 個別空調 |
| 駐車場 | 立体駐車場 14台 |
| 駐車料金 | 駐車場1台:20,000円(税別)敷金:2ヶ月 |
| 付属設備 |
|
| 備考 | 昭和通り沿い・赤坂交差点そばのオフィスビル |
| 各階内装:事務所仕上げ・天井高:2,43m | |
| 地下1階:貸倉庫有・約1.5~2坪(有料) | |
| 水道代:月額3,000円税別必要・保証会社加入必要 |
| 階数 | 面積 | 賃料(総額) | 共益費(総額) | 敷金(総額) | 家賃総額 |
| (坪単価) | (坪単価) | (ヶ月) | |||
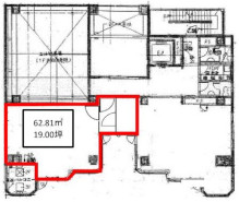
| 2 | 19.00坪(62.81㎡) | 209,000円 | 47,500円 | 1,254,000円 |
256,500円
[税込:282,150円] |
| @11,000円 | @2,500円 | 6ヶ月 |
2F:19坪
|
|
1F:玄関入口
|

- 2F:19坪
- 1F:玄関入口
| ビルNo | 24004 |
|---|---|
| ビル名 | オフィスニューガイアセレス赤坂門№19 |
| 所在地 | 福岡市中央区舞鶴3-1-10 【地図はこちら】 |
| アクセス | 地下鉄赤坂駅より徒歩約4分 |
| アクセス2 | 西鉄バス:法務局前より徒歩約1分 |
| 階数面積 | 2階 19.00坪(62.81㎡) | |
|---|---|---|
| 賃料 | 総額 | 209,000円 (坪単価 @11,000円) |
| 共益費 | 総額 | 47,500円 (坪単価 @2,500円) |
| 敷金 | 総額 | 1,254,000円 (6ヶ月) |
| 家賃総額 | 256,500円 (税込:282,150円) | |
| 付属設備 |
|
|---|
| 駐車場 | 立体駐車場 14台 |
|---|---|
| 駐車料金 | 駐車場1台:20,000円(税別)敷金:2ヶ月 |
| 備考 | 昭和通り沿い・赤坂交差点そばのオフィスビル |
|---|---|
| 各階内装:事務所仕上げ・天井高:2,43m | |
| 地下1階:貸倉庫有・約1.5~2坪(有料) | |
| 水道代:月額3,000円税別必要・保証会社加入必要 |
| 構造 | RC造 地下1階地上12階建 |
|---|---|
| 竣工年月 | H4.6完成(1992年) |
| EV | 乗 用:9人乗り 1基 |
| 空調システム | 個別空調 |
〒812-0011 福岡市博多区博多駅前3丁目25番24号 八百治ビル8階 Phone 092-431-6300

福岡の賃貸事務所・賃貸オフィスの不動産会社
【オフィスバンク株式会社】
〒812-0011
福岡県福岡市博多区博多駅前3丁目25番24号八百治ビル8階
Phone 092-431-6300
登録許可 / 福岡県知事(4)第15838号 全国宅地建物取引業保証協会会員
福岡県宅地建物取引業協会会員 福岡商工会議所会員


















