ビルNo:24040
第2プリンスビル
昭和通り沿い・1階~4階:事務所フロア・5階以上分譲マンション

| 建築・設備概要 | |
| 所在地 | 福岡市中央区大名2-9-29 |
| アクセス1 | 地下鉄天神昇降口:徒歩約6分 |
| アクセス2 | 西鉄舞鶴1丁目バス停前 |
| 構造 | SRC造地下1階 地上11階建 |
| 竣工年月 | S49.11完成(1974年) |
| エレベーター | 乗 用:9人乗り 3基 |
| 空調システム | 個別空調 |
| 駐車場 | 地下駐車場 20台 |
| 駐車料金 | 駐車場2台:35000円(税別) 敷金:2ケ月 |
| 付属設備 |
|
| 備考 | 昭和通り沿いの複合ビル |
| 1階-4階:事務所フロア・内装:事務所仕上げ | |
| 5階以上:分譲マンション・事務所可・企業多数入居 | |
| 保証会社加入必要・テナント総合保険加入必要 |
| 階数 | 面積 | 賃料(総額) | 共益費(総額) | 敷金(総額) | 家賃総額 |
| (坪単価) | (坪単価) | (ヶ月) | |||
| 9 | 17.93坪(59.27㎡) | 239,090円 | 20,000円 | 1,243,270円 |
259,090円
[税込:284,999円] |
| @13,335円 | @1,115円 | 5.2ヶ月 |
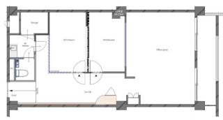
9F:59㎡タイプ(913)
|
|
9F:59㎡タイプ(913)
|

- 9F:59㎡タイプ(913)
- 9F:59㎡タイプ(913)
| ビルNo | 24040 |
|---|---|
| ビル名 | 第2プリンスビル |
| 所在地 | 福岡市中央区大名2-9-29 【地図はこちら】 |
| アクセス | 地下鉄天神昇降口:徒歩約6分 |
| アクセス2 | 西鉄舞鶴1丁目バス停前 |
| 階数面積 | 9階 17.93坪(59.27㎡) | |
|---|---|---|
| 賃料 | 総額 | 239,090円 (坪単価 @13,335円) |
| 共益費 | 総額 | 20,000円 (坪単価 @1,115円) |
| 敷金 | 総額 | 1,243,270円 (5.2ヶ月) |
| 家賃総額 | 259,090円 (税込:284,999円) | |
| 付属設備 |
|
|---|
| 駐車場 | 地下駐車場 20台 |
|---|---|
| 駐車料金 | 駐車場2台:35000円(税別) 敷金:2ケ月 |
| 備考 | 昭和通り沿いの複合ビル |
|---|---|
| 1階-4階:事務所フロア・内装:事務所仕上げ | |
| 5階以上:分譲マンション・事務所可・企業多数入居 | |
| 保証会社加入必要・テナント総合保険加入必要 |
| 構造 | SRC造地下1階 地上11階建 |
|---|---|
| 竣工年月 | S49.11完成(1974年) |
| EV | 乗 用:9人乗り 3基 |
| 空調システム | 個別空調 |
〒812-0011 福岡市博多区博多駅前3丁目25番24号 八百治ビル8階 Phone 092-431-6300

福岡の賃貸事務所・賃貸オフィスの不動産会社
【オフィスバンク株式会社】
〒812-0011
福岡県福岡市博多区博多駅前3丁目25番24号八百治ビル8階
Phone 092-431-6300
登録許可 / 福岡県知事(4)第15838号 全国宅地建物取引業保証協会会員
福岡県宅地建物取引業協会会員 福岡商工会議所会員


















