ビルNo:60005
大橋花村ビル
日赤通り沿い・九大大橋キャンパス入口交差点・角地のオフィスビル

| 建築・設備概要 | |
| 所在地 | 福岡市南区大橋2-1-1 |
| アクセス1 | 西鉄電車大橋駅より徒歩約3分 |
| アクセス2 | 西鉄バス:大橋1丁目停より徒歩約1分 |
| 構造 | RC造 地上6階建 |
| 竣工年月 | H5.8完成(1993年) |
| エレベーター | 乗 用:13人乗り 1基 |
| 空調システム | 個別空調 |
| 駐車場 | 立体駐車場 26台 |
| 駐車料金 | 駐車場1台:20,000円(税別) 敷金:3ケ月 |
| 付属設備 |
|
| 備考 | 日赤通り沿い・九大大橋キャンパス入口交差点 |
| デザイン性のある角地のオフィスビル | |
| 2階以上:事務所仕上げ・OA・天井高:2.6m | |
| 1階内装:事務所仕上げ・給排水有 |
| 階数 | 面積 | 賃料(総額) | 共益費(総額) | 敷金(総額) | 家賃総額 |
| (坪単価) | (坪単価) | (ヶ月) | |||
| 6 | 32.42坪(107.17㎡) | 307,990円 | 81,050円 | 3,695,880円 |
389,040円
[税込:427,944円] |
| @9,500円 | @2,500円 | 12ヶ月 |
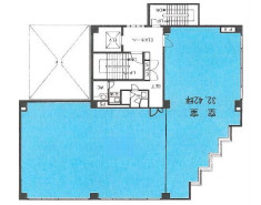
32.41坪タイプ
|
|
1F:玄関入口
|

- 32.41坪タイプ
- 1F:玄関入口
| ビルNo | 60005 |
|---|---|
| ビル名 | 大橋花村ビル |
| 所在地 | 福岡市南区大橋2-1-1 【地図はこちら】 |
| アクセス | 西鉄電車大橋駅より徒歩約3分 |
| アクセス2 | 西鉄バス:大橋1丁目停より徒歩約1分 |
| 階数面積 | 6階 32.42坪(107.17㎡) | |
|---|---|---|
| 賃料 | 総額 | 307,990円 (坪単価 @9,500円) |
| 共益費 | 総額 | 81,050円 (坪単価 @2,500円) |
| 敷金 | 総額 | 3,695,880円 (12ヶ月) |
| 家賃総額 | 389,040円 (税込:427,944円) | |
| 付属設備 |
|
|---|
| 駐車場 | 立体駐車場 26台 |
|---|---|
| 駐車料金 | 駐車場1台:20,000円(税別) 敷金:3ケ月 |
| 備考 | 日赤通り沿い・九大大橋キャンパス入口交差点 |
|---|---|
| デザイン性のある角地のオフィスビル | |
| 2階以上:事務所仕上げ・OA・天井高:2.6m | |
| 1階内装:事務所仕上げ・給排水有 |
| 構造 | RC造 地上6階建 |
|---|---|
| 竣工年月 | H5.8完成(1993年) |
| EV | 乗 用:13人乗り 1基 |
| 空調システム | 個別空調 |
〒812-0011 福岡市博多区博多駅前3丁目25番24号 八百治ビル8階 Phone 092-431-6300

福岡の賃貸事務所・賃貸オフィスの不動産会社
【オフィスバンク株式会社】
〒812-0011
福岡県福岡市博多区博多駅前3丁目25番24号八百治ビル8階
Phone 092-431-6300
登録許可 / 福岡県知事(4)第15838号 全国宅地建物取引業保証協会会員
福岡県宅地建物取引業協会会員 福岡商工会議所会員


















