国体通り沿い・西通り入口そばの商業店舗ビル・令和7年3月完成
エリアント大名
ビルNo:22300

| 建築・設備概要 | |
| 所在地 | 福岡市中央区大名1-1-8 |
| アクセス | 西鉄電車福岡駅徒歩約7分 西鉄バス今泉1丁目停徒歩約1分 |
| 構造 | S造 地上7階建 |
| 竣工年月 | R7.6完成(2025年) |
| エレベーター | 乗 用:9人乗り 1基 |
| 駐車場 | --- 無し --- |
| 駐車料金 | ---------- |
| 入居可能日 | |
| 備考 | 国体通り沿い・西通り入口そば・令和7年6月完成 |
| 1フロア1社タイプの商業店舗ビル | |
| 1階₋4階・7階:内装スケルトン渡し | |
| 5階₋6階内装:事務所仕上げ・OAフロア |
| 階数 | 面積 | 賃料(総額) | 共益費(総額) | 敷金(総額) | 家賃総額 |
| (坪単価) | (坪単価) | (ヶ月) | |||
| 6 | 29 .81 坪(98.55㎡) | 596,200円 | 0円 | 7,154,400円 |
596,200円
[税込:655,820円] |
| @20,000円 | @0円 | 12ヶ月 |
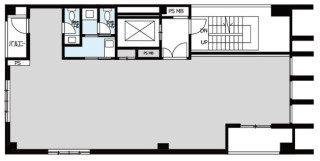
5F-6F
|
|
1F:エレベーターホール
|

- 5F-6F
- 1F:エレベーターホール
| 建築・設備概要 | |
|---|---|
| 所在地 | 福岡市中央区大名1-1-8 【地図はこちら】 |
| アクセス | 西鉄電車福岡駅徒歩約7分 |
| アクセス2 | 西鉄バス今泉1丁目停徒歩約1分 |
| 構造 | S造 地上7階建 |
| 竣工年月 | R7.6完成(2025年) |
| EV | 乗 用:9人乗り 1基 |
| 駐車場 | --- 無し --- |
| 駐車料金 | ---------- |
| 備考 | 国体通り沿い・西通り入口そば・令和7年6月完成 |
|---|---|
| 1フロア1社タイプの商業店舗ビル | |
| 1階₋4階・7階:内装スケルトン渡し | |
| 5階₋6階内装:事務所仕上げ・OAフロア |
| 階数面積 | 6階 29.81坪(98.55㎡) | |
|---|---|---|
| 賃料 | 総額 | 596,200円 (坪単価 @20,000円) |
| 共益費 | 総額 | 0円 (坪単価 @0円) |
| 敷金 | 総額 | 7,154,400円 (12ヶ月) |
| 家賃総額 | 596,200円 (税込:655,820円) | |
〒812-0011 福岡市博多区博多駅前3丁目25番24号 八百治ビル8階 Phone 092-431-6300

福岡の賃貸事務所・賃貸オフィスの不動産会社
【オフィスバンク株式会社】
〒812-0011
福岡県福岡市博多区博多駅前3丁目25番24号八百治ビル8階
Phone 092-431-6300
登録許可 / 福岡県知事(4)第15838号 全国宅地建物取引業保証協会会員
福岡県宅地建物取引業協会会員 福岡商工会議所会員


















